注册 | 登录
今日更新:100
已为你搜索到以下结果 /没有搜到相关素材请加qq群704148082索取
雨屋桐庐-酒店民宿
2024-01-13 15:26:06
酒店民宿来建筑设计雨屋桐庐
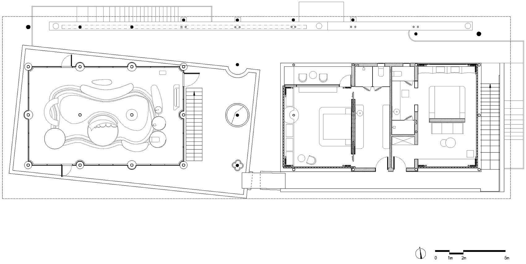
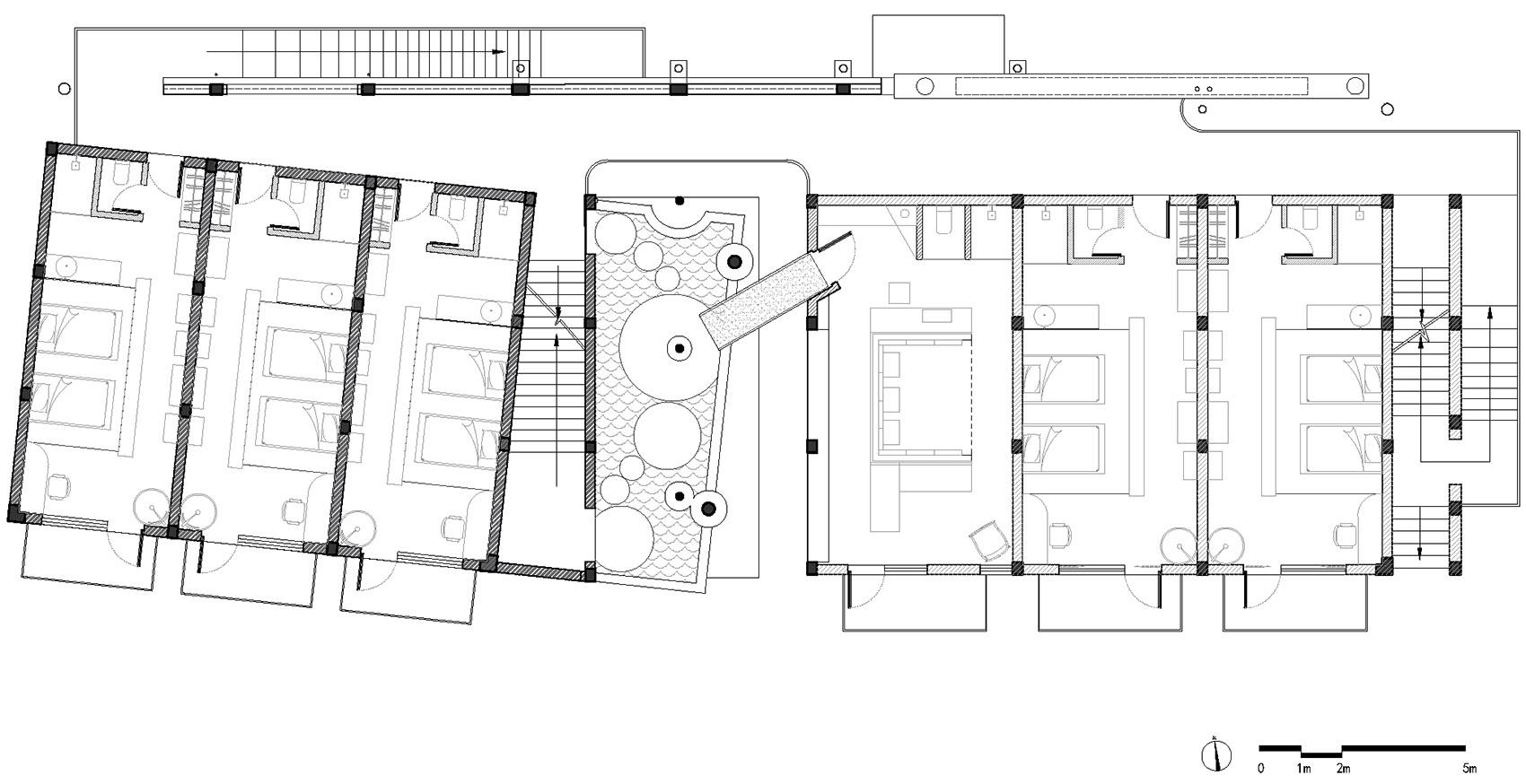
【酒店民宿】来建筑设计-雨屋,桐庐

1.jpg2.jpg3.jpg4.jpg“交月亭”位于浙西丘陵地区的一座村落之中。村子在半山腰,四面景观具佳。村里大多数民宅已经被改造为民宿,因此需要为其配套一座餐厅以及前台接待。交月亭是进入村子的第一座建筑,从一个民宅复建而来。一层临路,作为村子的接待以及厨房后勤区域,二层视野开阔,作为餐厅。交月亭的背后紧靠竹林,面前是开阔的山水景观。那么建筑该以何种姿态进入自然山水中?是设计要回答的问题。5.jpg6.jpg7.jpg8.jpg9.jpg10.jpg11.jpg12.jpg

木是一种温暖的令人亲近的材料,由自然生长而来,是凝固的生机,是驯化的自然。其易得性和可加工性,使得木材是最原始最质朴的构件材料。人对于木材的亲近感源自于人跟木材长久的相伴相生。仅需要简单的工具,人就能将自然中获得的木料制成器物。但是自然之中的木料尺寸有限,要达到更大的结构跨越,需要用小料进行叠加。中国传统木构中就有“小料大作”的技艺和传承。“小料”的叠加手法,不仅是对工匠技艺的考验,也是传统社会中等级化的象征(比如斗拱的铺作、藻井的层数、……)。可以说木作是中国传统建筑中,集合了社会、文化、哲学的三位一体的系统。13.jpg14.jpg15.jpg16.jpg17.jpg18.jpg19.jpg20.jpg21.jpg22.jpg23.jpg24.jpg25.jpg26.jpg27.jpg28.jpg29.jpg30.jpg31.jpg32.jpg33.jpg34.jpg35.jpg36.jpg37.jpg38.jpg39.jpg40.jpg

登录查看全部
雨屋桐庐-酒店民宿
素材ID号1245复制ID号
155
  • 上传时间: 2024-01-13 15:26:06
  • 文件大小: 19.85M
  • 素材标签: 酒店民宿来建筑设计雨屋桐庐
  • 高清原图下载
  • 收藏
  • 分享
  • 他上传的材料
    028-86628548
  • 关于我们 网站协议 关于我们 联系我们 加入我们 业务拓展
  • 常见问题 上传要求 下载问题 充值支付 提现收益 帮助中心
  • 免责声明 本网站内容由用户自由上传,如权利人发现存在误传其作品情形,请及时与本站客服联系
  • 友情链接
  • 关注我们

    了解更多