注册 | 登录
今日更新:100
已为你搜索到以下结果 /没有搜到相关素材请加qq群704148082索取
南岔湾-石屋部落民宿-酒店民宿
2024-01-13 15:42:08
酒店民宿南岔湾石屋部落民宿
酒店民宿 南岔湾·石屋部落民宿

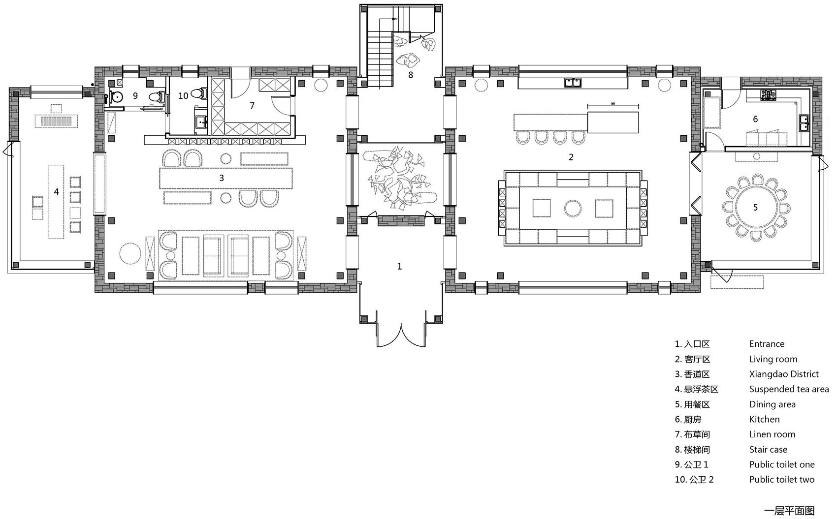
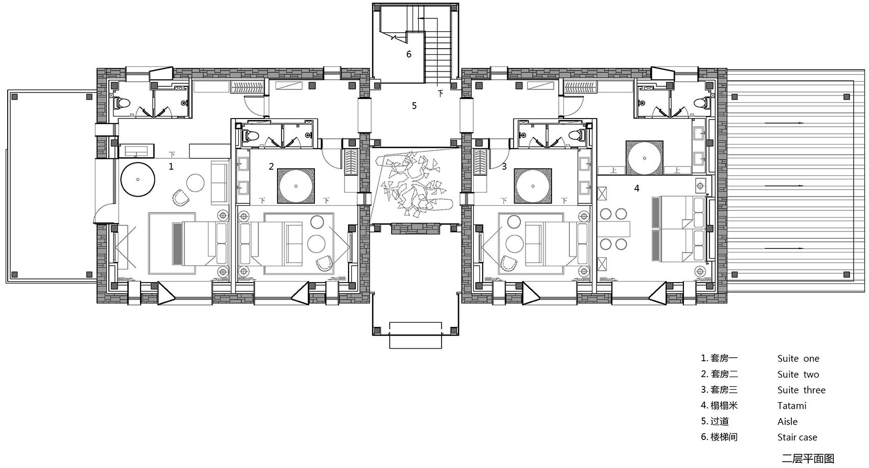
1.jpg前话:本案位于湖北宜昌的一个小山村。整个村落由两条水系环绕,承半环形山地与农田组成,山体大部分为自然原石,项目房子全由当地石料砌筑而成。2.jpg3.jpg4.jpg源:源于当地的民俗传承与古法石墙的砌筑方式,因地制宜,因势利导,顺应当下的生活方式。5.jpg

问:房子由原村落的两个兄弟的石屋,外部小石块堆砌而成,肌理混乱,工艺粗糙,但由于时间的沉淀而变成真实。屋内由木结构加土砖砌筑,年久失修,已支撑不了石墙的重量。6.jpg9.jpg10.jpg11.jpg12.jpg13.jpg14.jpg15.jpg17.jpg16.jpg18.jpg19.jpg20.jpg21.jpg23.jpg26.jpg21b.jpg27.jpg22.jpg24.jpg25.jpg28.jpg29.jpg30.jpg31.jpg

登录查看全部
南岔湾-石屋部落民宿-酒店民宿
素材ID号1248复制ID号
171
  • 上传时间: 2024-01-13 15:42:08
  • 文件大小: 34.93M
  • 素材标签: 酒店民宿南岔湾石屋部落民宿
  • 高清原图下载
  • 收藏
  • 分享
  • 他上传的材料
    028-86628548
  • 关于我们 网站协议 关于我们 联系我们 加入我们 业务拓展
  • 常见问题 上传要求 下载问题 充值支付 提现收益 帮助中心
  • 免责声明 本网站内容由用户自由上传,如权利人发现存在误传其作品情形,请及时与本站客服联系
  • 友情链接
  • 关注我们

    了解更多