注册 | 登录
今日更新:100
已为你搜索到以下结果 /没有搜到相关素材请加qq群704148082索取
涅十设计-酒店民宿
2024-01-13 15:46:52
酒店民宿涅十设计
【酒店民宿】涅十设计

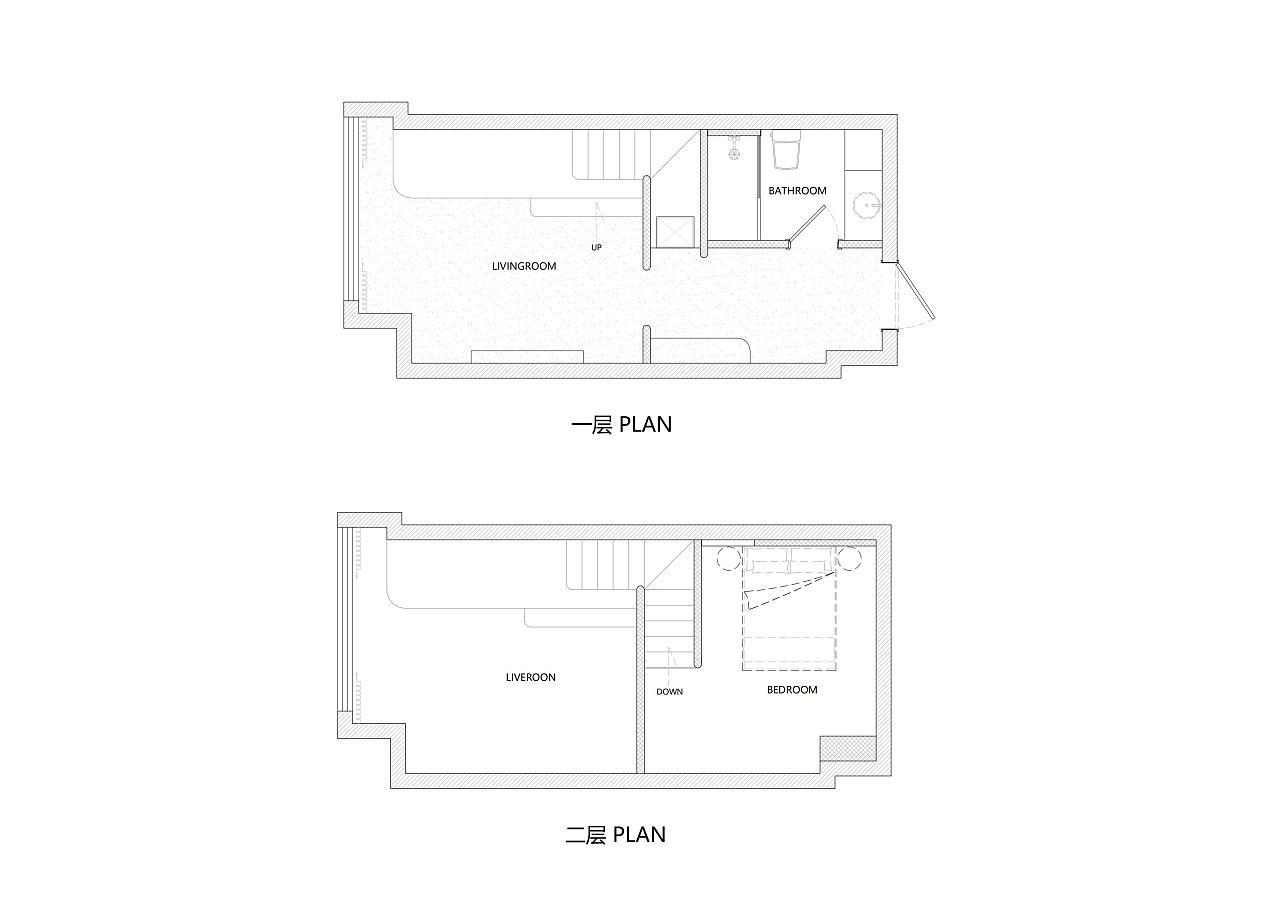
1 (1).jpg1 (2).jpg1 (3).jpg进门的区域,我们在玄关独立出一个过渡区域,让客人可以在这个区域满足一些功能性的需求,茶水台,穿衣镜,衣柜储物功能等
1 (5).jpg1 (6).jpg1 (7).jpg1 (8).jpg客厅区域我们做了挑空,这里我们可以看见二楼那根很低的梁,我们在设计楼梯的适合就考虑好梁的尺寸,梁下刚好是我们二楼楼梯的扶手,所以就可以规避掉梁会撞头的情况,还有一种方式,是把楼梯设计的过程中,过楼梯的过程把梁处理掉,这里考虑二楼空间,没有采用这种方式。

1 (9).jpg1 (10).jpg1 (11).jpg1 (12).jpg1 (13).jpg1 (14).jpg1 (15).jpg1 (16).jpg1 (17).jpg1 (18).jpg1 (19).jpg1 (20).jpg1 (21).jpg1 (22).jpg1 (23).jpg1 (24).jpg

登录查看全部
涅十设计-酒店民宿
素材ID号1249复制ID号
175
  • 上传时间: 2024-01-13 15:46:52
  • 文件大小: 19.74M
  • 素材标签: 酒店民宿涅十设计
  • 高清原图下载
  • 收藏
  • 分享
  • 他上传的材料
    028-86628548
  • 关于我们 网站协议 关于我们 联系我们 加入我们 业务拓展
  • 常见问题 上传要求 下载问题 充值支付 提现收益 帮助中心
  • 免责声明 本网站内容由用户自由上传,如权利人发现存在误传其作品情形,请及时与本站客服联系
  • 友情链接
  • 关注我们

    了解更多