注册 | 登录
今日更新:100
已为你搜索到以下结果 /没有搜到相关素材请加qq群704148082索取
用简单的几何形状构建空间秩序-ql办公室
2023-03-27 17:29:55
建筑艺术办公室
“我想把它用途转变,做成一个更加符合该城市地段,满足当代办公创作需求的空间。空间的大量”放松“,能让空间内的人,在繁复的城市工作中,给予精神上的释放,思想更加自由的游走。

“建筑师通过使一些形式有序化,实现一种秩序,这秩序是他精神的纯创造;他用这些形式强烈的影响我们的意识,诱发造型的激情;他以他创造的协调,在我们心里唤起深刻的共鸣,这时我们感受到了美。—— 勒·柯布西耶 ‍”


办公室-金麦道设计素材网www.ycpic (8).jpg

以一个简单的几何形状来构建空间秩序,用最简单的方法去解决复杂的问题。


办公室-金麦道设计素材网www.ycpic (9).jpg

QI STUDIO是大器设计师的一个创作空间。原建筑本身,是上世纪九十年代伊始,一个不是有太多历史印迹的传统印刷工厂。主体外围往往搭建大量的搭棚,用来增大仓储,制作等使用空间。外立面是沾满粉尘的土黄,与渗入泥土的油墨味道,构成了尚在市区内,典型的江南小工厂。

办公室-金麦道设计素材网www.ycpic (10).jpg

“我想把它用途转变,做成一个更加符合该城市地段,满足当代办公创作需求的空间。空间的大量”放松“,能让空间内的人,在繁复的城市工作中,给予精神上的释放,思想更加自由的游走。创作者们在这里寻找彼此,想象自由的在这里混合,碰撞,激发。我们希望,这样的空间设计在这个江南城市变迁中,能带来一些典型并且有意义的参考。“  ——  大器如是说。


办公室-金麦道设计素材网www.ycpic (11).jpg

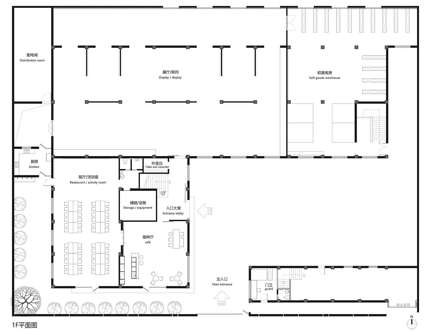
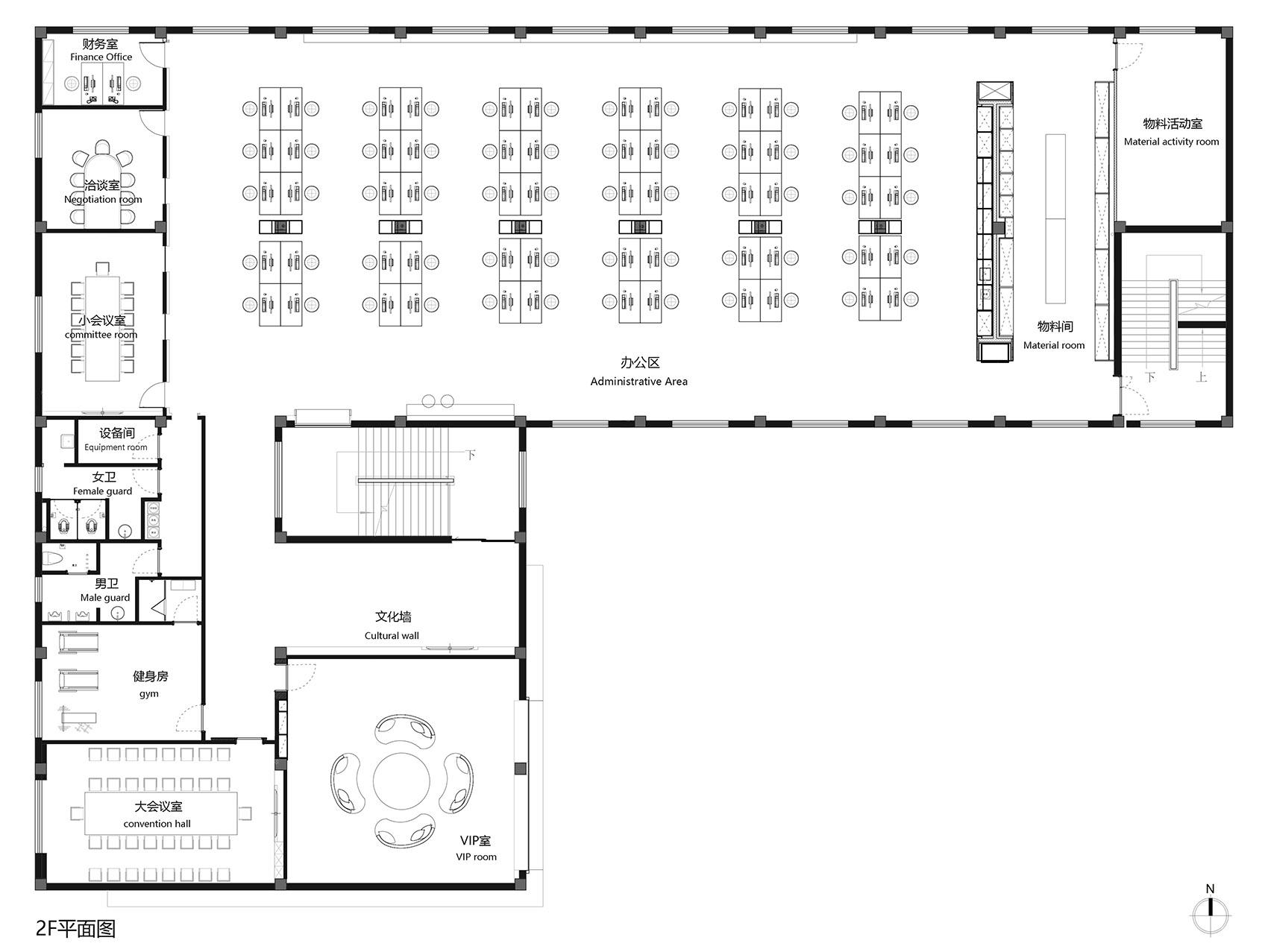
建筑结构并没有太多的改造,但空间形象与感受确是彻底的变化。办公空间主要分布在L形建筑的两个楼层,专门为员工及客户设置了生活艺术展厅,VIP洽谈室,酒吧区,健身房,多功能会议室,多功能餐厅,休闲娱乐空间。此外,在建筑的顶层还建造了一个屋顶花园,设计师在这里体验“城市农夫”的快乐,为员工创造了强烈的归属感,将“工作场所”转变成舒适的“生活空间”。

办公室-金麦道设计素材网www.ycpic (12).jpg办公室-金麦道设计素材网www.ycpic (13).jpg办公室-金麦道设计素材网www.ycpic (14).jpg办公室-金麦道设计素材网www.ycpic (15).jpg办公室-金麦道设计素材网www.ycpic (16).jpg办公室-金麦道设计素材网www.ycpic (17).jpg办公室-金麦道设计素材网www.ycpic (18).jpg办公室-金麦道设计素材网www.ycpic (9).gif


用建筑的语言设计空间和明暗、线面对话。MR.BEAR用作空间装饰,跳跃的红色给整个空间带来一份趣味与悸动。

办公室-金麦道设计素材网www.ycpic (19).jpg办公室-金麦道设计素材网www.ycpic (20).jpg办公室-金麦道设计素材网www.ycpic (21).jpg

v黑白调的纯粹办公区域开敞且无距离感。

在这次设计中,办公空间打破了传统意义上的封闭式秩序感,创造一个自由办公的环境,设计师都在肉眼可见的范围内,彼此沟通,共享资源,整个工作区域都为开放式的无遮挡状态,所有的行为规范及秩序性都在大家的自我约束中产生,构成积极化的工作环境。二层吊顶的设计巧妙地隐藏了空调、排水管、电线等走线,利用原结构表现出结构的秩序。


办公室-金麦道设计素材网www.ycpic (22).jpg办公室-金麦道设计素材网www.ycpic (23).jpg办公室-金麦道设计素材网www.ycpic (24).jpg办公室-金麦道设计素材网www.ycpic (25).jpg办公室-金麦道设计素材网www.ycpic (26).jpg办公室-金麦道设计素材网www.ycpic (27).jpg办公室-金麦道设计素材网www.ycpic (28).jpg办公室-金麦道设计素材网www.ycpic (29).jpg办公室-金麦道设计素材网www.ycpic (30).jpg办公室-金麦道设计素材网www.ycpic (31).jpg办公室-金麦道设计素材网www.ycpic (32).jpg办公室-金麦道设计素材网www.ycpic (33).jpg办公室-金麦道设计素材网www.ycpic (34).jpg办公室-金麦道设计素材网www.ycpic (35).jpg办公室-金麦道设计素材网www.ycpic (36).jpg办公室-金麦道设计素材网www.ycpic (37).jpg办公室-金麦道设计素材网www.ycpic (38).jpg

登录查看全部
用简单的几何形状构建空间秩序-ql办公室
素材ID号897复制ID号
174
  • 上传时间: 2023-03-27 17:29:55
  • 文件大小: 8.54M
  • 素材标签: 建筑艺术办公室
  • 高清原图下载
  • 收藏
  • 分享
  • 他上传的材料
    028-86628548
  • 关于我们 网站协议 关于我们 联系我们 加入我们 业务拓展
  • 常见问题 上传要求 下载问题 充值支付 提现收益 帮助中心
  • 免责声明 本网站内容由用户自由上传,如权利人发现存在误传其作品情形,请及时与本站客服联系
  • 友情链接
  • 关注我们

    了解更多