注册 | 登录
今日更新:100
已为你搜索到以下结果 /没有搜到相关素材请加qq群704148082索取
丰富了空间的层次开阔清朗-前海荟办公室
2023-03-27 17:41:43
科技精品办公室
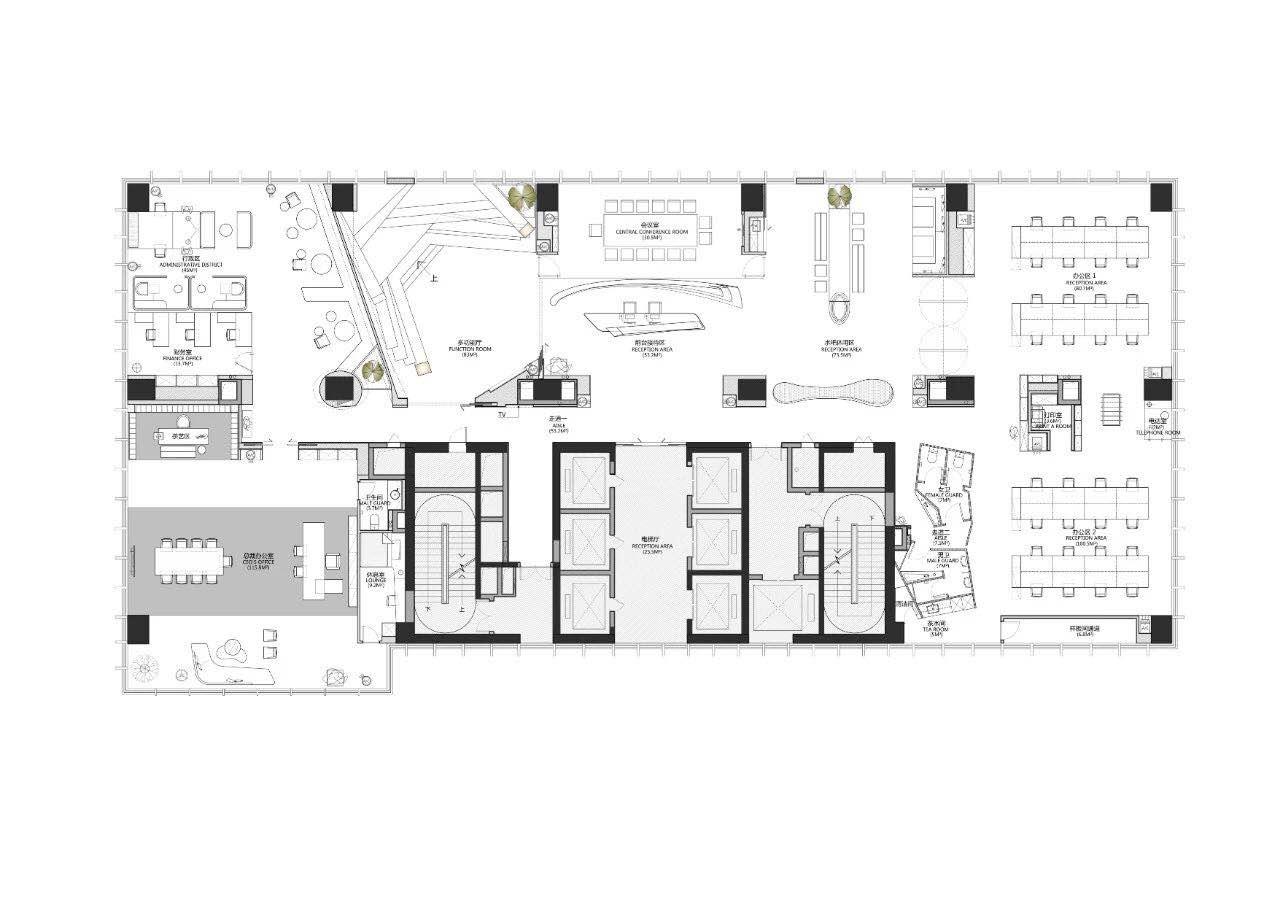
项目原貌为公寓性格局,各个空间相互封闭独立,且空间原始粗犷,活动动线较为单一。设计师重新整顿整体格局,将各个空间打通,形成开阔清朗的环境,再将空间依照不同的功能划分为公共区域、开放办公区以及封闭办公区,丰富了空间的层次。

办公室-金麦道设计素材网www.ycpic (8).jpg

项目位于深圳宝安区,主营业务为高新科技以及电子类别。因所处地域及行业特性,客户力求打造兼具开放活力及国际创新的办公空间,打破传统办公环境的束缚。传统的格子间办公环境宛如密封机器空间,个体被束缚在固定位置,自成一片天地,像是被钉好的螺丝。但是这一切在改变,自由开放且有点酷的办公环境成为年轻人的青睐。设计师在本案的规划中,从交流协作的办公理念破题,以人文为佐料,同时注入未来科技感与艺术感,打造一个更好玩的办公环境。 办公室-金麦道设计素材网www.ycpic (9).jpg

水吧休闲区的木质家具柔和空间科技感,带来温润空间质感。洽谈室宛如半开的盒子,一半隐秘,一半公开,黑色背景宛如舞台幕布,引得阵阵遐想。

办公室-金麦道设计素材网www.ycpic (10).jpg办公室-金麦道设计素材网www.ycpic (11).jpg办公室-金麦道设计素材网www.ycpic (12).jpg

多功能厅由穿插的线条体块组成,不规则线条构造简洁而有力,同时具有视觉韵律美感,丰富空间层次变化。部分体块可以自由移动,满足多功能使用,打造多样性的趣味空间。

办公室-金麦道设计素材网www.ycpic (13).jpg办公室-金麦道设计素材网www.ycpic (14).jpg多功能厅由穿插的线条体块组成,不规则线条构造简洁而有力,同时具有视觉韵律美感,丰富空间层次变化。部分体块可以自由移动,满足多功能使用,打造多样性的趣味空间。

办公室-金麦道设计素材网www.ycpic (15).jpg办公室-金麦道设计素材网www.ycpic (16).jpg办公室-金麦道设计素材网www.ycpic (17).jpg

办公室-金麦道设计素材网www.ycpic (29).jpg总经办增设茶艺区,采用新的现代手法,于室内造雅致之境。木质茶台送古韵,葱绿盘景点诗意。茶香飘于室内,慰藉日常的疲劳。

办公室-金麦道设计素材网www.ycpic (27).jpg办公室-金麦道设计素材网www.ycpic (28).jpg办公室-金麦道设计素材网www.ycpic (30).jpg办公室-金麦道设计素材网www.ycpic (31).jpg办公室-金麦道设计素材网www.ycpic (32).jpg办公室-金麦道设计素材网www.ycpic (33).jpg办公室-金麦道设计素材网www.ycpic (34).jpg办公室-金麦道设计素材网www.ycpic (35).jpg办公室-金麦道设计素材网www.ycpic (36).jpg

项目原貌为公寓性格局,各个空间相互封闭独立,且空间原始粗犷,活动动线较为单一。设计师重新整顿整体格局,将各个空间打通,形成开阔清朗的环境,再将空间依照不同的功能划分为公共区域、开放办公区以及封闭办公区,丰富了空间的层次。

办公室-金麦道设计素材网www.ycpic (38).jpg办公室-金麦道设计素材网www.ycpic (40).jpg办公室-金麦道设计素材网www.ycpic (41).jpg办公室-金麦道设计素材网www.ycpic (42).jpg办公室-金麦道设计素材网www.ycpic (39).jpg办公室-金麦道设计素材网www.ycpic (44).jpg办公室-金麦道设计素材网www.ycpic (18).jpg办公室-金麦道设计素材网www.ycpic (19).jpg办公室-金麦道设计素材网www.ycpic (20).jpg办公室-金麦道设计素材网www.ycpic (21).jpg办公室-金麦道设计素材网www.ycpic (22).jpg办公室-金麦道设计素材网www.ycpic (23).jpg办公室-金麦道设计素材网www.ycpic (24).jpg办公室-金麦道设计素材网www.ycpic (25).jpg办公室-金麦道设计素材网www.ycpic (26).jpg

全案大面积铺以高纯度白色,同时以黑色作为辅色,于空间中进行调和,显现公司的现代感与科技感。设计师同时在室内多处放置绿植,柔和空间科技感,增加人文自然气息。一抹抹绿意是一转眼的惊喜,也是工作上的舒缓。所采用的落地玻璃窗将外景引进,深圳的日与夜变成室内一幕,俯览这座城,将城市之景尽收眼底。

办公室-金麦道设计素材网www.ycpic (27).jpg办公室-金麦道设计素材网www.ycpic (28).jpg办公室-金麦道设计素材网www.ycpic (29).jpg办公室-金麦道设计素材网www.ycpic (30).jpg办公室-金麦道设计素材网www.ycpic (31).jpg办公室-金麦道设计素材网www.ycpic (32).jpg办公室-金麦道设计素材网www.ycpic (33).jpg办公室-金麦道设计素材网www.ycpic (34).jpg办公室-金麦道设计素材网www.ycpic (35).jpg办公室-金麦道设计素材网www.ycpic (36).jpg办公室-金麦道设计素材网www.ycpic (37).jpg办公室-金麦道设计素材网www.ycpic (38).jpg办公室-金麦道设计素材网www.ycpic (39).jpg办公室-金麦道设计素材网www.ycpic (40).jpg办公室-金麦道设计素材网www.ycpic (41).jpg办公室-金麦道设计素材网www.ycpic (42).jpg办公室-金麦道设计素材网www.ycpic (44).jpg

登录查看全部
丰富了空间的层次开阔清朗-前海荟办公室
素材ID号898复制ID号
184
  • 上传时间: 2023-03-27 17:41:43
  • 文件大小: 7.73M
  • 素材标签: 科技精品办公室
  • 高清原图下载
  • 收藏
  • 分享
  • 他上传的材料
    028-86628548
  • 关于我们 网站协议 关于我们 联系我们 加入我们 业务拓展
  • 常见问题 上传要求 下载问题 充值支付 提现收益 帮助中心
  • 免责声明 本网站内容由用户自由上传,如权利人发现存在误传其作品情形,请及时与本站客服联系
  • 友情链接
  • 关注我们

    了解更多