注册 | 登录
今日更新:100
已为你搜索到以下结果 /没有搜到相关素材请加qq群704148082索取
优雅商务理想谷隐世独栋花园-轻奢办公室
2023-03-27 17:57:46
开放精品办公室
如果说展示是外在且生硬的,那员工日常办公的相互活动中所体现出来的人本细节即是这个空间的内核。在兼顾开放性与实用性的实景样板间中,优雅商务理想,由此照进现实。

隐世独栋花园办公,优雅商务理想谷

北京海淀的文化资源居全国之首,在这片充满魅力的土地上,孕育着中华传统文化与世界现代科技文明融合的最新成果,是北京乃至国家的“创新核”。在北京海淀区北部新区中关村环保科技园中,中国铁建集团邀请北京德曼思建筑装饰设计打造一座极具优雅美学气质的商务书香门第“理想谷”。项目共为三个地块,其中南北为办公地块,中间为商业地块。三个地块的设计各有特色,又相互呼应,将建筑设计与城市、景观设计充分结合,利用周边景观资源打造优美的园区环境。


办公室-金麦道设计素材网www.ycpic (8).jpg办公室-金麦道设计素材网www.ycpic (9).jpg办公室-金麦道设计素材网www.ycpic (10).jpg办公室-金麦道设计素材网www.ycpic (11).jpg办公室-金麦道设计素材网www.ycpic (12).jpg

办公室-金麦道设计素材网www.ycpic (13).jpg办公室-金麦道设计素材网www.ycpic (14).jpg

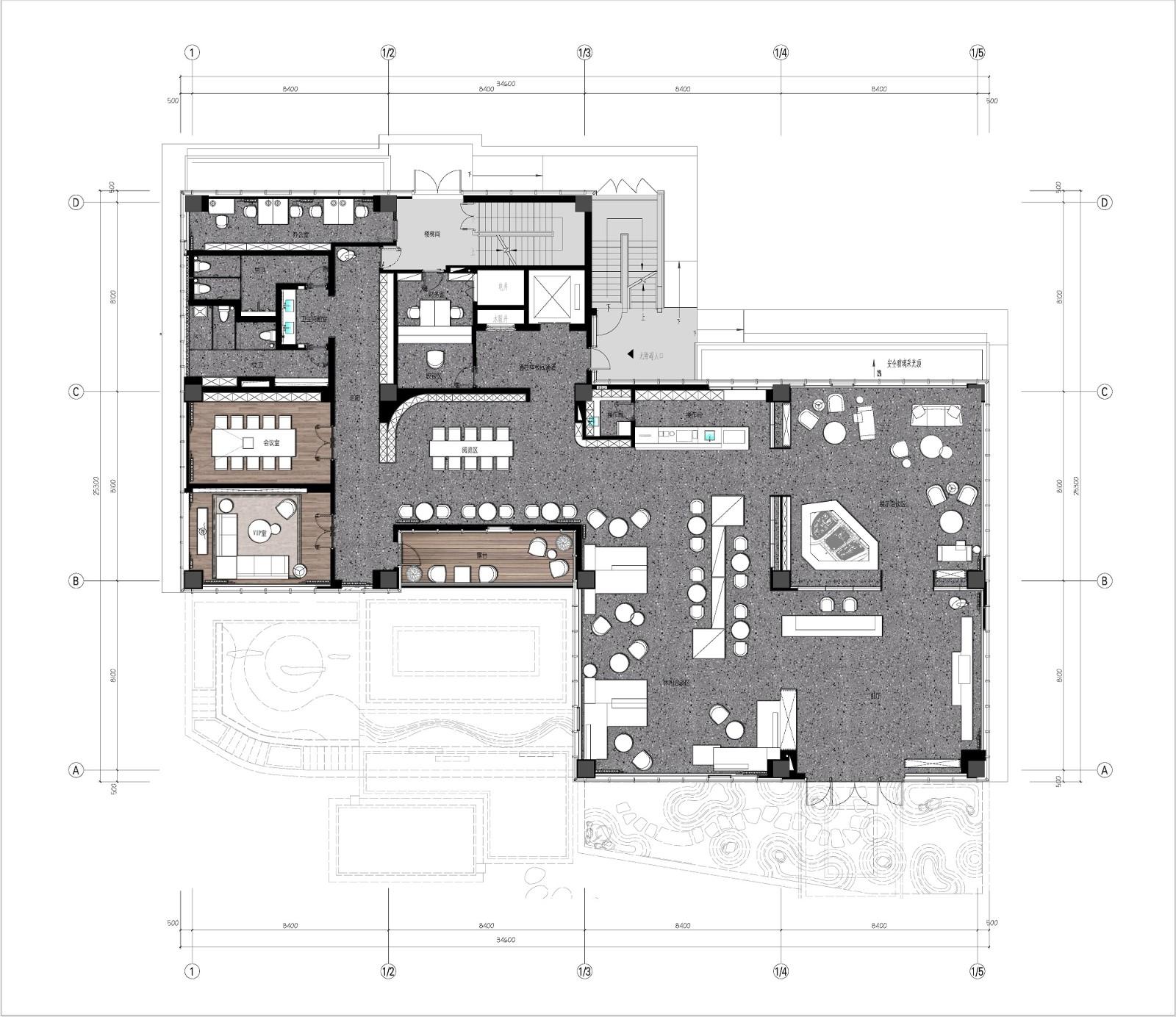
示范展示区坐落在园区北区,利用园区的一栋实体办公楼,打造成一个集售楼、咖啡厅、书吧、以及办公样板展示,藏于园区中。林语堂说:“最好的建筑是这样的,我们深处其中,却不知道自然在哪里终了,艺术在哪里开始。”而设计师相信,最好的空间,是你所处其中,能被这种不争于世的自信所感动。花园式独栋办公楼,园区内建筑整体采用“低密”形式排布,中央景观区与庭院景观区互相渗透,建筑之间相互围合成景观院落。


办公室-金麦道设计素材网www.ycpic (15).jpg办公室-金麦道设计素材网www.ycpic (16).jpg办公室-金麦道设计素材网www.ycpic (17).jpg办公室-金麦道设计素材网www.ycpic (18).jpg办公室-金麦道设计素材网www.ycpic (19).jpg办公室-金麦道设计素材网www.ycpic (20).jpg

示范区展示共有两层,一层为书吧、咖啡兼顾销售空间,二层为商务办公展示空间,将做为实用办公与接待展示的场所。

一层空间依据空间结构把各个实用性空间适用各个不同功能,在浓厚书香文化中体验午后下午茶的休闲,在休闲轻松的气氛里了解项目的特色及品质。

咖啡吧区,在实际使用过程中可满足园区的高新技术精英们体验都市中的世外桃源之感。


办公室-金麦道设计素材网www.ycpic (21).jpg办公室-金麦道设计素材网www.ycpic (22).jpg办公室-金麦道设计素材网www.ycpic (23).jpg

书吧区,营造的是一个“知识共享”的空间,在当代都市生活中能够体验到阅读的精神内核: “多元、包容、理解”。

销售展示空间,弱化销售的痕迹,强调体验感。从空间的动线到家具材质的选择,充分考虑人本的需求,软装牛皮、实木等自然温和的材质与硬装金属、水磨石等硬朗材质互相补充。


办公室-金麦道设计素材网www.ycpic (24).jpg办公室-金麦道设计素材网www.ycpic (25).jpg办公室-金麦道设计素材网www.ycpic (26).jpg办公室-金麦道设计素材网www.ycpic (27).jpg办公室-金麦道设计素材网www.ycpic (28).jpg

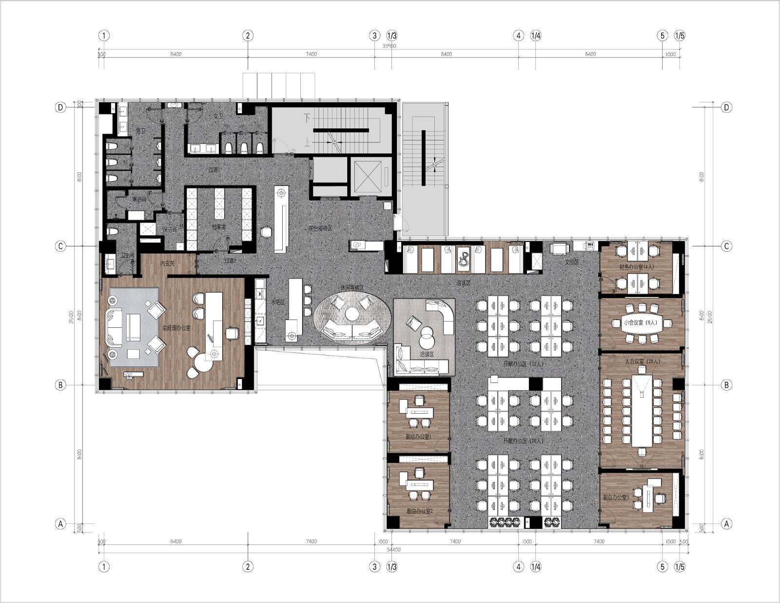
二层办公空间功能多元融合,即作为销售展示,同时也是业主方实用办公的场所。设计需考虑中铁建做为央企的使命感,同时还要能够为入驻企业搭建更具开放包容、生态低密、灵活多样的办公主场,为更多的企业,开放理想的天空。力求让办公人性化,让空间生活化,把办公的接待等候区和销售的商务洽谈结合在一起。如果说展示是外在且生硬的,那员工日常办公的相互活动中所体现出来的人本细节即是这个空间的内核。在兼顾开放性与实用性的实景样板间中,优雅商务理想,由此照进现实。


办公室-金麦道设计素材网www.ycpic (29).jpg办公室-金麦道设计素材网www.ycpic (30).jpg办公室-金麦道设计素材网www.ycpic (31).jpg办公室-金麦道设计素材网www.ycpic (32).jpg办公室-金麦道设计素材网www.ycpic (33).jpg办公室-金麦道设计素材网www.ycpic (34).jpg办公室-金麦道设计素材网www.ycpic (35).jpg办公室-金麦道设计素材网www.ycpic (36).jpg办公室-金麦道设计素材网www.ycpic (37).jpg

登录查看全部
优雅商务理想谷隐世独栋花园-轻奢办公室
素材ID号899复制ID号
198
  • 上传时间: 2023-03-27 17:57:46
  • 文件大小: 11.83M
  • 素材标签: 开放精品办公室
  • 高清原图下载
  • 收藏
  • 分享
  • 他上传的材料
    028-86628548
  • 关于我们 网站协议 关于我们 联系我们 加入我们 业务拓展
  • 常见问题 上传要求 下载问题 充值支付 提现收益 帮助中心
  • 免责声明 本网站内容由用户自由上传,如权利人发现存在误传其作品情形,请及时与本站客服联系
  • 友情链接
  • 关注我们

    了解更多