注册 | 登录
今日更新:100
已为你搜索到以下结果 /没有搜到相关素材请加qq群704148082索取
营造亲自然惬意舒适的环境-白沙泉办公室
2023-03-28 15:05:01
别墅开放办公室
建筑师: 杭州巨合建筑设计事务所 面积 : 400 m² 项目年份 : 2019 摄影师 :TIM 厂家 : Dashu, Nippon Paint, Treezo

办公室-金麦道设计素材网www.ycpic (13).jpg办公室-金麦道设计素材网www.ycpic (17).jpg办公室-金麦道设计素材网www.ycpic (16).jpg办公室-金麦道设计素材网www.ycpic (15).jpg

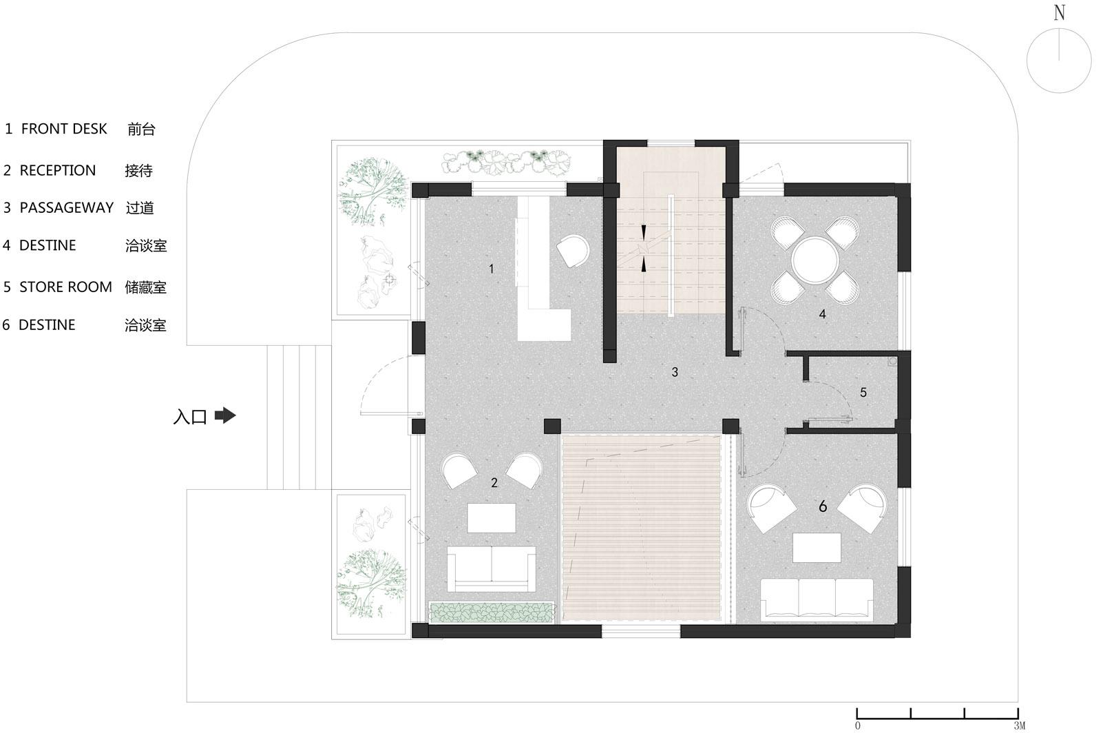
考虑到原状层高低矮,立面较为封闭、单调。因此对外立面我们通过拆除部分墙面,运用大面积落地玻璃来扩大室内视野的景观面,改变原有建筑立面的虚实比重,重新梳理整体建筑与场地关系。开放、通透、充分利用周边绿化,将室外光与景引入室内,来营造亲近自然,惬意舒适的环境。


办公室-金麦道设计素材网www.ycpic (3).jpg

通过对原有结构墙体及柱子的处理而形成的木饰面隔断墙,既能满足功能性的空间分割,又能保证内部空间的通透和交流的便利。


办公室-金麦道设计素材网www.ycpic (4).jpg办公室-金麦道设计素材网www.ycpic (5).jpg办公室-金麦道设计素材网www.ycpic (6).jpg
会议室的墙顶一体的书架造型,既体现会议室使用的庄重性又不失空间的个性和舒适感。
办公室-金麦道设计素材网www.ycpic (7).jpg办公室-金麦道设计素材网www.ycpic (8).jpg

多方考量:从经济效益走势图和起伏的山峦中提取元素加以糅合。山峦元素的引入,我们不仅是为了与外景有所呼应、满足甲方亲近自然的氛围需求。也是因为它有着稳重与可信赖的关键词,是对公司核心价值观:“执着于事,真诚予人”最直观的感受体现。

办公室-金麦道设计素材网www.ycpic (9).jpg办公室-金麦道设计素材网www.ycpic (10).jpg办公室-金麦道设计素材网www.ycpic (11).jpg办公室-金麦道设计素材网www.ycpic (12).jpg

登录查看全部
营造亲自然惬意舒适的环境-白沙泉办公室
素材ID号918复制ID号
166
  • 上传时间: 2023-03-28 15:05:01
  • 文件大小: 4.53M
  • 素材标签: 别墅开放办公室
  • 高清原图下载
  • 收藏
  • 分享
  • 他上传的材料
    028-86628548
  • 关于我们 网站协议 关于我们 联系我们 加入我们 业务拓展
  • 常见问题 上传要求 下载问题 充值支付 提现收益 帮助中心
  • 免责声明 本网站内容由用户自由上传,如权利人发现存在误传其作品情形,请及时与本站客服联系
  • 友情链接
  • 关注我们

    了解更多