真诚尊重彼此真诚亦彼此尊重-灵犀办公室
2023-03-28 15:19:59
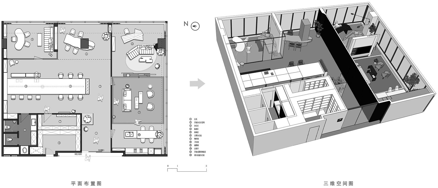
极简灰调办公室
属灵的丰富并不意味着物质上的贫乏。在人与空间的互动中,它提供了理想的办公体验:真诚和尊重彼此。
精神上的丰沛并不意味着物质的贫瘠,而是在人与人、人与空间的交互中,交付出理想的办公体验:真诚亦彼此尊重。

普通的办公室格子间极易形成"自我隔离"的工作状态,而我们尝试通过对原始空间秩序的扭转、跨过"大家庭"的松弛安逸,去重塑和制造一种更适宜的"外里外关系"。

强调空间的"可选择性",放弃建筑强加于人们的"距离限定",进而使空间属性发生错位,让温度浸入并颠覆刻板冷漠的工作日常。



设计释放办公空间的潜力,通过立体、灵活、界面封闭、不同封闭程度的空间设计,在空间与场景之间建立多样化的连接。这种连接打破了三个层次的私人空间之间的障碍。设计师将不同级别的隐私集成到嵌套空间中,以创建多个渐变边界,并增加隐私级别。



这个相对自由的白色空间,设计师运用简约、当代的手法布局,通过有序的块面、绿植、自然光,打造一个流动的空间。家具、软装选用与空间色调相一致的黑白灰,不打破空间的干净、简洁,仿佛留白,让人保持一种更加松弛和平静的状态。点亮纯白空间的装饰画为纯净的空间注入温暖的质感,成为空间吸晴有趣的一笔。在一片安静无声之中,光线成了时间,成了时钟的指针,自己生长、自己进化,并有多元可能性。不打破空间的干净简洁,仿佛留空,使人保持更加放松和平静的状态。点亮纯白空间的装饰画,为纯空间注入了温暖的质感,成为一件有趣的空间吸收。在寂静中,光变成了时间和时钟的指针,自行成长和演变,有多种可能性。


如果说空间的改造是情感的传播,那么进入接待区则是视觉与功能的有序巧妙结合。从功能的分布可以看出,黑色内部空间整合了复杂而密集的功能,向外部空间释放了大量的体积。将窗外的自然环境与黑色的内部空间连接起来,具有像室外庭院一样的过渡性和轻松的氛围,可以看作是类似于内部的外部空间,以及类似于外部的内部空间。内空间的完整形态和黑色挡土墙的应用,进一步强化了“内外模糊”的意图。



安静私密的接待室内空间和宽敞发达的公共空间不仅有墙体的物理隔断,而且与室外自然景观有着强烈而轻盈的关系。这种大与小、白与黑、稀疏与密、开与合的对比,形成了独特的空间韵律。



进入时间的细节,在无序和未知的生活中寻找确定的东西。设计师怀着对未知的好奇心和探索,使用丰富多样的设计语言来解放明确定义的空间。精神维度从美的领域产生,从而实现真正意义上的自由和开放。



登录查看全部