注册 | 登录
今日更新:100
已为你搜索到以下结果 /没有搜到相关素材请加qq群704148082索取
延续旧办公环境的自然简约风-伯妮办公室
2023-03-28 16:36:45
简约室内办公室
伯妮婚礼策划机构原址也在园区内,现有空间设计很好的延续了旧办公环境的自然简约风,保留原始旧厂房结构,在此基础上做了提升改造与细节打造。

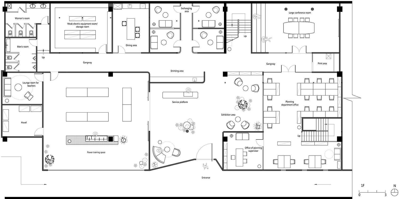
此项目位于杭丝联166创意园,利用旧厂房的改造,成为了杭州最负盛名的LOFT创意产业园。伯妮婚礼策划机构原址也在园区内,现有空间设计很好的延续了旧办公环境的自然简约风,保留原始旧厂房结构,在此基础上做了提升改造与细节打造。由黑色金属板与木窗框结合的入口通道,黑色调的沉稳,木质温暖的触感,及金色LOGO的点缀,带来精致的安全感。
办公室-金麦道设计素材网www.ycpic (4).jpg
整体色调米白色,前台利用爵士白大理石与铜的碰撞,并在视觉上与背景墙有机的融合,协调且不失细节。暖色调空间散发着柔软的香气,淡雅且温暖。背景墙拐角特别设计的弧形造型,在后面其他空间将呼应体现。
办公室-金麦道设计素材网www.ycpic (5).jpg办公室-金麦道设计素材网www.ycpic (6).jpg办公室-金麦道设计素材网www.ycpic (7).jpg

展示区类同于休闲区,提供接待加洽谈,可变性很大。三组随意摆放的沙发,中间一组错落有致的绿植,以及原始水泥柱裸露的设计,无一不体现婚礼机构想给客户打造这种宾至如归的感觉。展示区与楼梯通道间用定制装饰架化解直通到底的尴尬。另一侧利用玻璃加木框作为隔断,很好的划分了办公空间与展示区,既分割又不完全封闭,通过顶上自然散落的天光,将整个空间明朗化。

办公室-金麦道设计素材网www.ycpic (8).jpg办公室-金麦道设计素材网www.ycpic (9).jpg办公室-金麦道设计素材网www.ycpic (10).jpg

墙面延续外立面黑色质感,引入到休息区,与墨绿植被的衔接,形成前厅完全独立的一部分。在等待的时间里,可以翻翻杂志、逛逛停停、或是放纵自己躺在沙发上发呆、拍照,给顾客打造一种家的轻松感。

办公室-金麦道设计素材网www.ycpic (11).jpg

多功能空间重点打造水吧台,巧妙的将体块与功能性结合。作为花艺培训空间,它具备了花材的供水换水功能,白色小砖台面可当桌子使用。作为活动派对空间,它具备了水吧台该有的功能。黑胡桃木材与铜结合的水池,铜质水龙头及把手的点缀,打造最精致操作台。在小白砖整体台面上特意留出的内凹圆洞,加上定制铜质水桶,就是一个完美香槟桶。

办公室-金麦道设计素材网www.ycpic (12).jpg办公室-金麦道设计素材网www.ycpic (13).jpg办公室-金麦道设计素材网www.ycpic (14).jpg

正面由白砖拼贴而成的两条内凹槽,可置放酒杯餐盘等物品。加上左上角台面有意割去的一角,正是整个水吧体块与功能、虚与实很好的诠释。顶上下挂的吊灯,连接吧台与黑色顶面的唯一纽带,让整个空间有序和谐的交织在一起。

办公室-金麦道设计素材网www.ycpic (15).jpg办公室-金麦道设计素材网www.ycpic (16).jpg办公室-金麦道设计素材网www.ycpic (17).jpg

办公室-金麦道设计素材网www.ycpic (18).jpg办公室-金麦道设计素材网www.ycpic (19).jpg

登录查看全部
延续旧办公环境的自然简约风-伯妮办公室
素材ID号922复制ID号
170
  • 上传时间: 2023-03-28 16:36:45
  • 文件大小: 4.27M
  • 素材标签: 简约室内办公室
  • 高清原图下载
  • 收藏
  • 分享
  • 他上传的材料
    028-86628548
  • 关于我们 网站协议 关于我们 联系我们 加入我们 业务拓展
  • 常见问题 上传要求 下载问题 充值支付 提现收益 帮助中心
  • 免责声明 本网站内容由用户自由上传,如权利人发现存在误传其作品情形,请及时与本站客服联系
  • 友情链接
  • 关注我们

    了解更多