注册 | 登录
今日更新:100
已为你搜索到以下结果 /没有搜到相关素材请加qq群704148082索取
创梦一切看起来都质朴自然-创梦办公室
2023-03-28 16:51:31
纹理侘寂办公室
设计:梁健室内设计 位置:中国 类型:建筑 材料:木质 不锈钢 标签:小巧精致的办公室 杭州 浙江 类别:办公 商业建筑

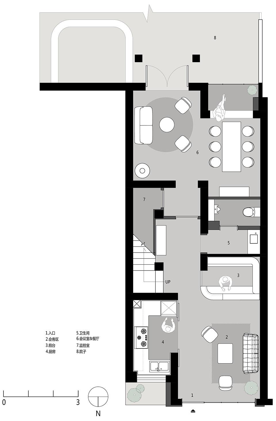
两间室内设计新工作室位于钱塘江西侧,毗邻西湖山脉。建筑原本是一幢地处村落中心的4层民居房,建筑外围有一个绿化大庭院,可休闲可聚会活动,具备良好的天然条件。由于此次设计项目是我们自己的办公空间,所以希望在空间上可以表达它自己的同时,创造出舒适并具备功能性的空间,展示工作室的设计理念与设计手法。
办公室-金麦道设计素材网www.ycpic (15).jpg
在这个项目中,我们充分考虑了团队和日常活动的需求,并赋予了空间新的特色。核心设计理念是简单。主色调为白色和灰色。采用大型原装平原混凝土墙和黑胡桃木贴面。最直接的设计语言营造出简洁、干净、舒适的办公氛围。
办公室-金麦道设计素材网www.ycpic (16).jpg

由于建筑条件不允许进行大量更改,因此建筑物的立面没有进行太多改造,只是在入口处制作了一个黑匣子概念。左边是不同的字母组合,用字母的背面高亮显示工作室的名字——梁健。右边是一个大型黑色金属框架落地玻璃。当阳光充足时,它通过黑色卷帘映射到室内地板。这一定是一幅美丽的画。中间铜色的定制黑胡桃木门,打破了黑匣子的沉闷,增添了乐趣。

办公室-金麦道设计素材网www.ycpic (17).jpg

酒吧表面由大面积的银纹不锈钢制成,角落里嵌着一个古老的黑胡桃木物体。这是新与旧、刚与软的碰撞。它形成了视觉对比,但它在形状上非常合适。同时,白色的墙壁和米色的水磨石地板反射出精致的复古家具,由裸露的混凝土天花板和镀锌管连接的聚光灯使空间更加温暖。

办公室-金麦道设计素材网www.ycpic (18).jpg办公室-金麦道设计素材网www.ycpic (19).jpg办公室-金麦道设计素材网www.ycpic (20).jpg

花绿色大理石台面,加上白色马赛克半墙铺路,带黄铜水龙头的银纹不锈钢方形镜子,以及来自古董市场的水晶吊灯。看似材料这么多,但实际上却展现了不同材料不同组合的可能性。一切看起来都质朴而自然。

办公室-金麦道设计素材网www.ycpic (21).jpg办公室-金麦道设计素材网www.ycpic (22).jpg

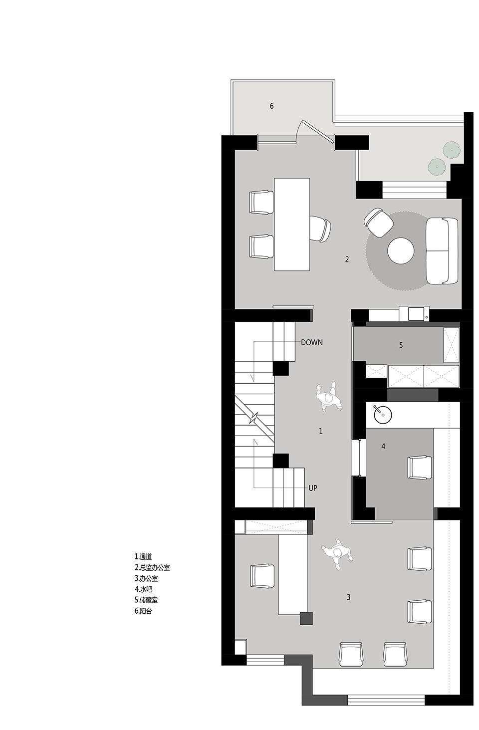
二楼包括设计总监办公室和设计师办公室。长长的过道区分了两个独立的空间,每个独立的空间都通过玻璃推拉门连接,既能满足功能空间的划分,又能保证内部空间的透明性和沟通的便利性。

办公室-金麦道设计素材网www.ycpic (23).jpg办公室-金麦道设计素材网www.ycpic (24).jpg办公室-金麦道设计素材网www.ycpic (25).jpg办公室-金麦道设计素材网www.ycpic (26).jpg办公室-金麦道设计素材网www.ycpic (27).jpg

波纹滑动门划分办公室和走道,可自由闭合,使两个空间既相对独立,又互相连接,将原本封闭的空间疏密有序地分割,虚实之间,形成丰富又连续的空间秩序。办公室以白色和木色来营造空间的简约质朴气息,办公一角设置了木色洗手台,兼具视觉与功能性。而另一面墙体安装了蘑菇空间的一体式实木书架,加上收藏的陈列品,使办公空间瞬间增添了不少生活气息。

办公室-金麦道设计素材网www.ycpic (3).jpg办公室-金麦道设计素材网www.ycpic (4).jpg办公室-金麦道设计素材网www.ycpic (5).jpg办公室-金麦道设计素材网www.ycpic (6).jpg

同样是银纹不锈钢推拉门,门上刻意留出的长方形玻璃面,削弱了房间的独立性,保证办公区域的私密性同时保证室内良好的采光。

办公室-金麦道设计素材网www.ycpic (7).jpg办公室-金麦道设计素材网www.ycpic (8).jpg办公室-金麦道设计素材网www.ycpic (9).jpg办公室-金麦道设计素材网www.ycpic (10).jpg

建筑装修墙面我们进行了拆除,露出混凝土面后再在基础上处理成白色手刮漆,地面部分全部采用米黄色现磨水磨石,意在营造清新明朗的办公氛围。随着我们在空间中布置新东西,设计完成,一切都是白色,没有矛盾,新旧色彩交相呼应。顶面墙面我们没有将电线和网线藏起来,而是利用银色镀锌管包裹,视觉上仍然可见,与空间已有的混凝土色呼应,不做特意改变。

办公室-金麦道设计素材网www.ycpic (11).jpg办公室-金麦道设计素材网www.ycpic (12).jpg办公室-金麦道设计素材网www.ycpic (13).jpg办公室-金麦道设计素材网www.ycpic (14).jpg

登录查看全部
创梦一切看起来都质朴自然-创梦办公室
素材ID号923复制ID号
153
  • 上传时间: 2023-03-28 16:51:31
  • 文件大小: 6.47M
  • 素材标签: 纹理侘寂办公室
  • 高清原图下载
  • 收藏
  • 分享
  • 他上传的材料
    028-86628548
  • 关于我们 网站协议 关于我们 联系我们 加入我们 业务拓展
  • 常见问题 上传要求 下载问题 充值支付 提现收益 帮助中心
  • 免责声明 本网站内容由用户自由上传,如权利人发现存在误传其作品情形,请及时与本站客服联系
  • 友情链接
  • 关注我们

    了解更多