注册 | 登录
今日更新:100
已为你搜索到以下结果 /没有搜到相关素材请加qq群704148082索取
精心巧妙的设计让空间灵动-凌笛办公室
2023-03-28 17:06:59
现代视觉办公室
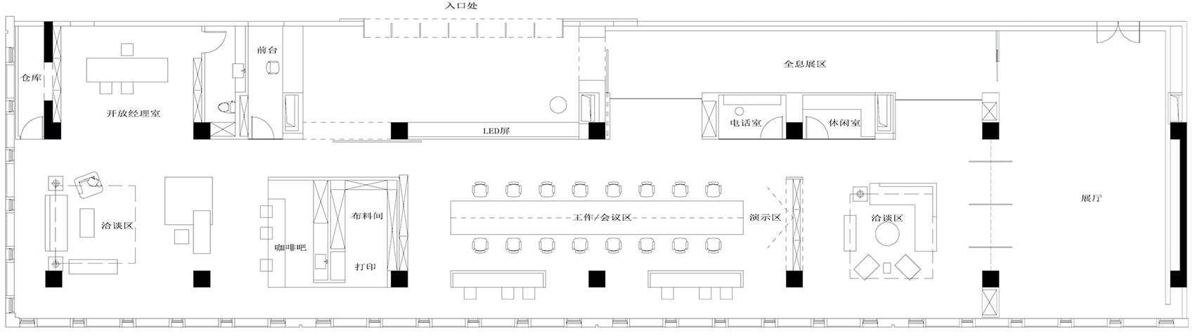
与传统办公空间不同,入口处选择了无前厅无招待的设置,在空间中做减法,能让整个办公空间更完整,使用简单的线条装饰进行间隔,既有分隔作用,又避免了常规的墙壁间隔,让空间灵动起来,而线条的装饰感,又仿佛是服装上简单的绗缝装饰,远看极具序列感,近看发现是精心巧妙的设计。

办公室-金麦道设计素材网www.ycpic (29).jpg

本案位于杭州赞成中心,一座有着方格结构立面的建筑,南面毗邻钱塘江畔,吸引了众多大型国际公司入驻办公。业主是一家专注于高端服装设计与面料研发的公司,随着业务发展,需要一个全新的空间以展现对于材质和面料的一直以来的坚持和品牌精神。

办公室-金麦道设计素材网www.ycpic (28).jpg办公室-金麦道设计素材网www.ycpic (27).jpg办公室-金麦道设计素材网www.ycpic (26).jpg

项目伊始,设计师胡之乐及其设计团队经过与业主的多次沟通之后,着重考虑的是如何通过空间与色彩来表达服装精良的布料材质和剪裁。设计师胡之乐希望使用极简的线条和装置对空间进行重塑,设计出一个集展示、会客、办公于一体的空间。

办公室-金麦道设计素材网www.ycpic (25).jpg办公室-金麦道设计素材网www.ycpic (24).jpg办公室-金麦道设计素材网www.ycpic (23).jpg办公室-金麦道设计素材网www.ycpic (22).jpg办公室-金麦道设计素材网www.ycpic (21).jpg办公室-金麦道设计素材网www.ycpic (20).jpg

在入口处,选用了白色进行展开,墙壁处也只选用了最简单的线条进行装饰,每一个到访的人都能在第一次进入空间时感觉极致的纯粹,而白色墙面与投影的搭配,让入口空间多了现代与专业气息,也让入口空间有了不同的视觉层面。


办公室-金麦道设计素材网www.ycpic (19).jpg办公室-金麦道设计素材网www.ycpic (18).jpg

办公室-金麦道设计素材网www.ycpic (16).jpg办公室-金麦道设计素材网www.ycpic (15).jpg

与传统办公空间不同,入口处选择了无前厅无招待的设置,在空间中做减法,能让整个办公空间更完整,使用简单的线条装饰进行间隔,既有分隔作用,又避免了常规的墙壁间隔,让空间灵动起来,而线条的装饰感,又仿佛是服装上简单的绗缝装饰,远看极具序列感,近看发现是精心巧妙的设计。

办公室-金麦道设计素材网www.ycpic (14).jpg办公室-金麦道设计素材网www.ycpic (13).jpg

设计师在江景视线区域内,对于区域的功能性做了一个全新的规划与整合,让这个区域空间的使用度变得更加自由,沙发、地毯、单人椅,质感与色彩相得益彰,设计师希望每个到来的使用者都能有一种闲适自在的心情,天气好的时候,向外望去,江上波光粼粼,船只来往,空间有了自然和人文气息。

办公室-金麦道设计素材网www.ycpic (12).jpg办公室-金麦道设计素材网www.ycpic (11).jpg办公室-金麦道设计素材网www.ycpic (10).jpg办公室-金麦道设计素材网www.ycpic (9).jpg办公室-金麦道设计素材网www.ycpic (8).jpg办公室-金麦道设计素材网www.ycpic (7).jpg

进入主空间中,一侧的落地窗让整个空间可将钱塘江秀美的江景尽收眼底,空间中使用了极简的色彩,设计师希望能够重现旧工业时代的质感与工艺。
办公室-金麦道设计素材网www.ycpic (6).jpg办公室-金麦道设计素材网www.ycpic (5).jpg

简单的东西往往能够在细节之处带给人们更多感受,空间在自带辨识度的同时亦解决了大环境所带来的纷杂之感,一个全新的空间正在发挥着它无限的可能。


办公室-金麦道设计素材网www.ycpic (4).jpg办公室-金麦道设计素材网www.ycpic (3).jpg

登录查看全部
精心巧妙的设计让空间灵动-凌笛办公室
素材ID号924复制ID号
169
  • 上传时间: 2023-03-28 17:06:59
  • 文件大小: 5.70M
  • 素材标签: 现代视觉办公室
  • 高清原图下载
  • 收藏
  • 分享
  • 他上传的材料
    028-86628548
  • 关于我们 网站协议 关于我们 联系我们 加入我们 业务拓展
  • 常见问题 上传要求 下载问题 充值支付 提现收益 帮助中心
  • 免责声明 本网站内容由用户自由上传,如权利人发现存在误传其作品情形,请及时与本站客服联系
  • 友情链接
  • 关注我们

    了解更多