最大程度的放松自己释放自己-陋室办公室
2023-03-28 17:31:42
侘寂纹理办公室
侘寂,是美学意识的一个组成部分,一般指的是朴素又安静的事物。它源自佛法中的三法印,既诸行无常、诸法无我、涅槃寂静。尤其是无常。

侘寂,是美学意识的一个组成部分,一般指的是朴素又安静的事物。它源自佛法中的三法印,既诸行无常、诸法无我、涅槃寂静。尤其是无常。




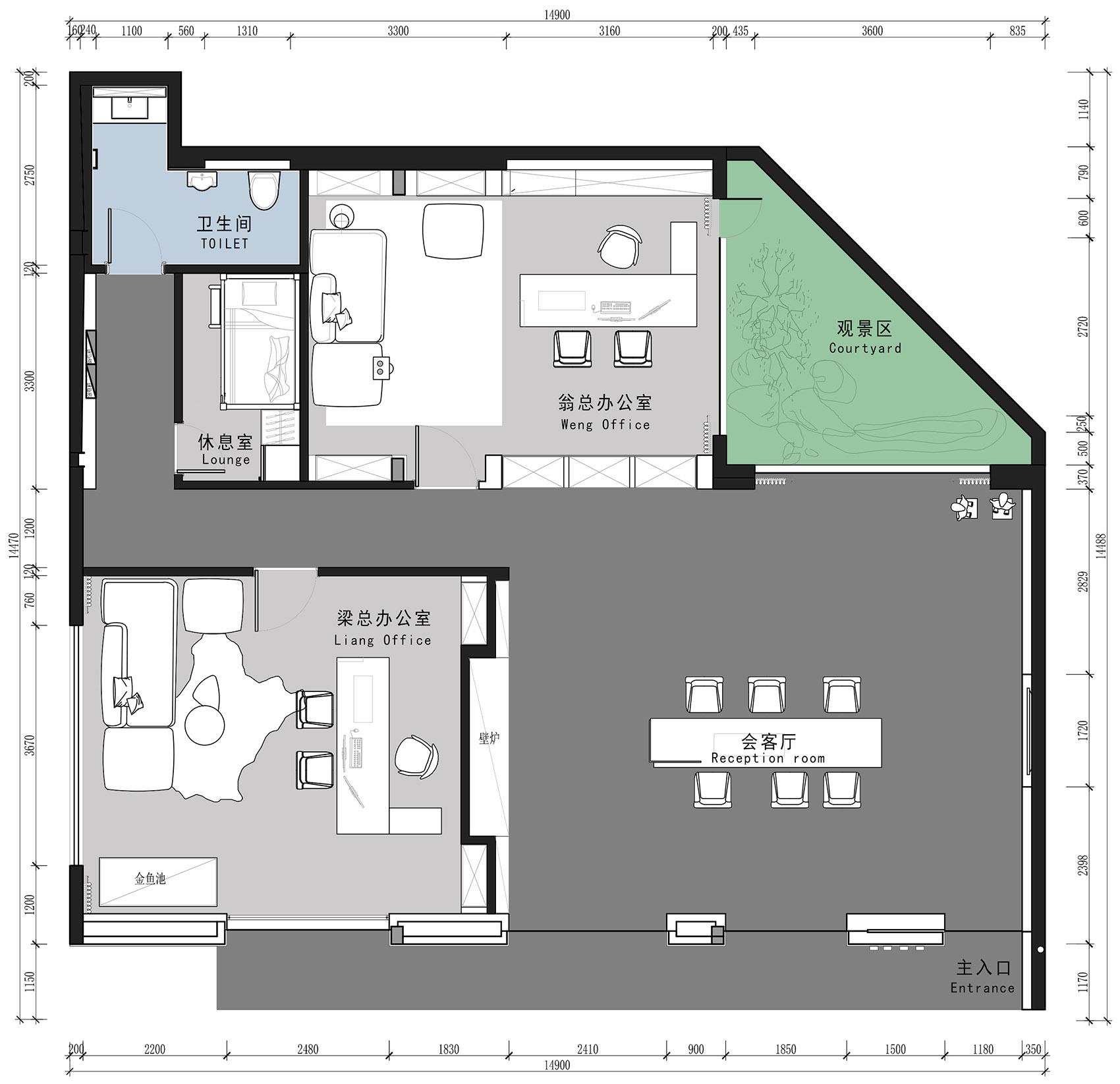
2014年与合伙人创办了品界设计,随着公司的成长,原有办公空间使用率已经饱和,为了更好的升级调整,决定扩大空间。做为一个室内设计师,最为希望的就是能够拥有一处静谧的空间,让自己的思维沉静下来,进入状态,做出更好的设计方案。今年年初,便扩租公司一楼闲置场地,设计了一个结合接待与办公的空间。租下该场地后,在设计初期,我们主创团队内心都是兴奋的。众所周知,黑白灰的对比,至少还有寥寥几笔勾勒,而我们办公室,从二维平面变成三维空间后,一切从简,从结构,到布局,再到造型,结合灯光,在我们力所能及的范围内,将极简做到极致,因为我们都觉得,少即是多。



在外立面的处理上,把原有的装修拆除到只剩最原始的且不能拆除的框架,利用落地玻璃与体块化的立面处理,让自然光最大程度的进入室内,尽可能的减少室内灯光的使用,让室内空间更多的时间,可以得到自然光的渲染,感受每天的早晚变化。整个外立面呈现出一种体块感,极具结构美学。



考虑到室内空间的实用性,该场所的功能简单说,只有办公和会客。公共部分用于与会客,交流学习,公司内部会议,公司内部培训等等。私人部分用于个人办公与休闲。我们的空间表达,可以概括为“用建筑的语言设计空间”和“明暗、线面对话”,进门大厅和走道就是最好的力证。仅靠单单入门的一条地面线光从室外穿透到室内,就能给人以犀利震撼的感受。这也表达出品界的极致利落的设计理念。过道上刻意留了一堵原始的毛胚墙,希望它保留原有状态。告诫自己,用当初的,最早的做设计的那种心态,坚持去面对当下,勿忘初心。



看似粗糙质感的墙漆,背后是采汲灵感时,和朋友相谈甚欢的故事。而清泠的艺术壁挂,则是用现代的方式去表达更深层次的传统古韵。这都是在阅历变化和自我打磨时,我们投影其中的情感细味和心路证据,极珍贵而不可复制。


将办公室设计成得没那么正式,没那么严肃,更多的是放松,静谧,在这里,工作即是生活,生活即是工作,更多的去感受生活,感受身边点点滴滴,方能更好的成就设计。无论是工作或是闲暇,都能如家般轻松自在与宁静,在音乐和茶的陪伴下,最大程度的放松自己,释放自己。





登录查看全部