结构的整体性起着至关重要-光觉办公室
2023-03-28 17:55:34
极简纹理办公室
纵向几何块面的构建,以达深远的意境,细长型的空间动线走向会诱导人在心理上产生好奇与期待。另外,同种性质的围合实体在改变方向后仍然相连的一种形态关系,这是从传统建筑中继承而来的一种属性一一由于结构的限制,几乎所有的实体都担当承重的作用,实体表面改变方向的拐点对结构的整体性起着至关重要的作用,所以连续性成为必然。
利用建筑外立面置入诱导式场景,延伸内外空间互动关系。这一空间概念所描述的正是现代建筑所表现出的内外交融的整体空间。只有在建筑中,人们才可以绕过或穿过界面,感受到“内”与“外”的空间。人们终于可以穿过想象的界面向前迈进,空间在人的感受行为中流动了起来。

对话
DIALOGUE
如何让建筑与艺术的对话,设计者给出的答案是将装置悬浮起来。通过将穿孔铝板以穿插造型浮于空间顶面,金属的质感、木色的柔和与水磨石、混泥土材质肌理形成对比,营造的是现代酷感中的一种温暖氛围,同时传达着艺术与建筑相呼应的庄重感。


多样围合
ENCLOSURE
设计者在围合体块的比例处理、在空间形式上的作用,围合块的长、宽、高比例问题发生。不但使建筑形式发生变化,同时它还配合内部空间,营造一定的空间氛围,围合体的比例变化不同,可表现出多样的空间。以峻岭山岩的自然态势,利用解构的手法突破传统的围合,创造流动开放又相对独立的空间体验。

空间二次分割、解构、疏密调整,光与影在不同的界面相互渗透,行走视线的随机性产生不同的视觉路径,使得建筑元素与空间界面的视觉渗透,变得复杂、神秘而有趣。

精神满足
SPACE & SHARING
围合体高度的变幻,来构建多个形状窄而高的空间。强烈的竖向性会使人产生向上的感觉,同时激起人们的兴奋、崇高、激昂的情绪。如哥特式的教堂,高直的外部围合形式,反映出内部空间的窄而高。设计者正是利用这样的几何空间特点,发挥教堂的使用特点,让人产生希望和超越一切的精神力量。向上追求另一种境界,满足精神感受,同时另一方面体现出建筑的体量美。


纵向几何块面的构建,以达深远的意境,细长型的空间动线走向会诱导人在心理上产生好奇与期待。另外,同种性质的围合实体在改变方向后仍然相连的一种形态关系,这是从传统建筑中继承而来的一种属性一一由于结构的限制,几乎所有的实体都担当承重的作用,实体表面改变方向的拐点对结构的整体性起着至关重要的作用,所以连续性成为必然。

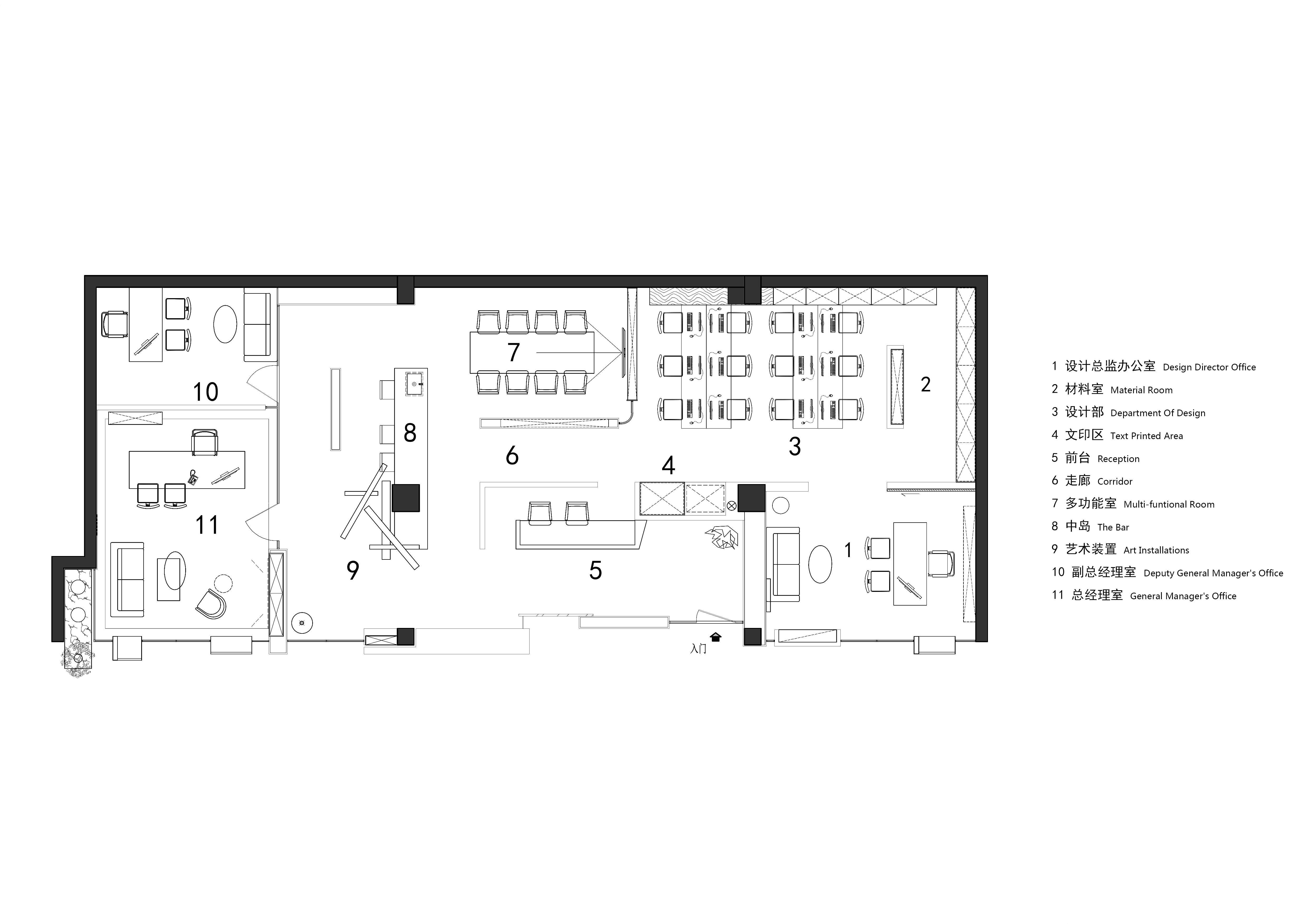
平面图

轴测图

登录查看全部