注册 | 登录
今日更新:100
已为你搜索到以下结果 /没有搜到相关素材请加qq群704148082索取
植入新设计元素让老建筑重生-美晖办公室
2023-03-30 16:40:04
现代工业纹理室内办公室
设计师希望通过空间的重新架构,植入新的设计元素,让老建筑得以重生。 从夹层挑台望向设计桌的长向灯槽,光或吊杆从灯槽上的散热孔穿出。 谷仓门套脱离后,标识串连其间,侧光将阴影投射于墙上。 总监室的穿孔钢板书柜成轴线的聚焦。

办公室-金麦道设计素材网www.ycpic (1).jpg
美晖将新办公室迁至泉州老字号“源和堂”的旧厂房。初临现场,恍惚于沉酿的岁月沧桑,墙面水迹斑驳,天棚圆洞投射下的光斑,在梁柱结构间玩着迷藏。瞬间有了一种冲动,去唤醒沉睡的空间记忆,注入新的生机,让其延续并生长。


办公室-金麦道设计素材网www.ycpic (2).jpg办公室-金麦道设计素材网www.ycpic (3).jpg办公室-金麦道设计素材网www.ycpic (4).jpg

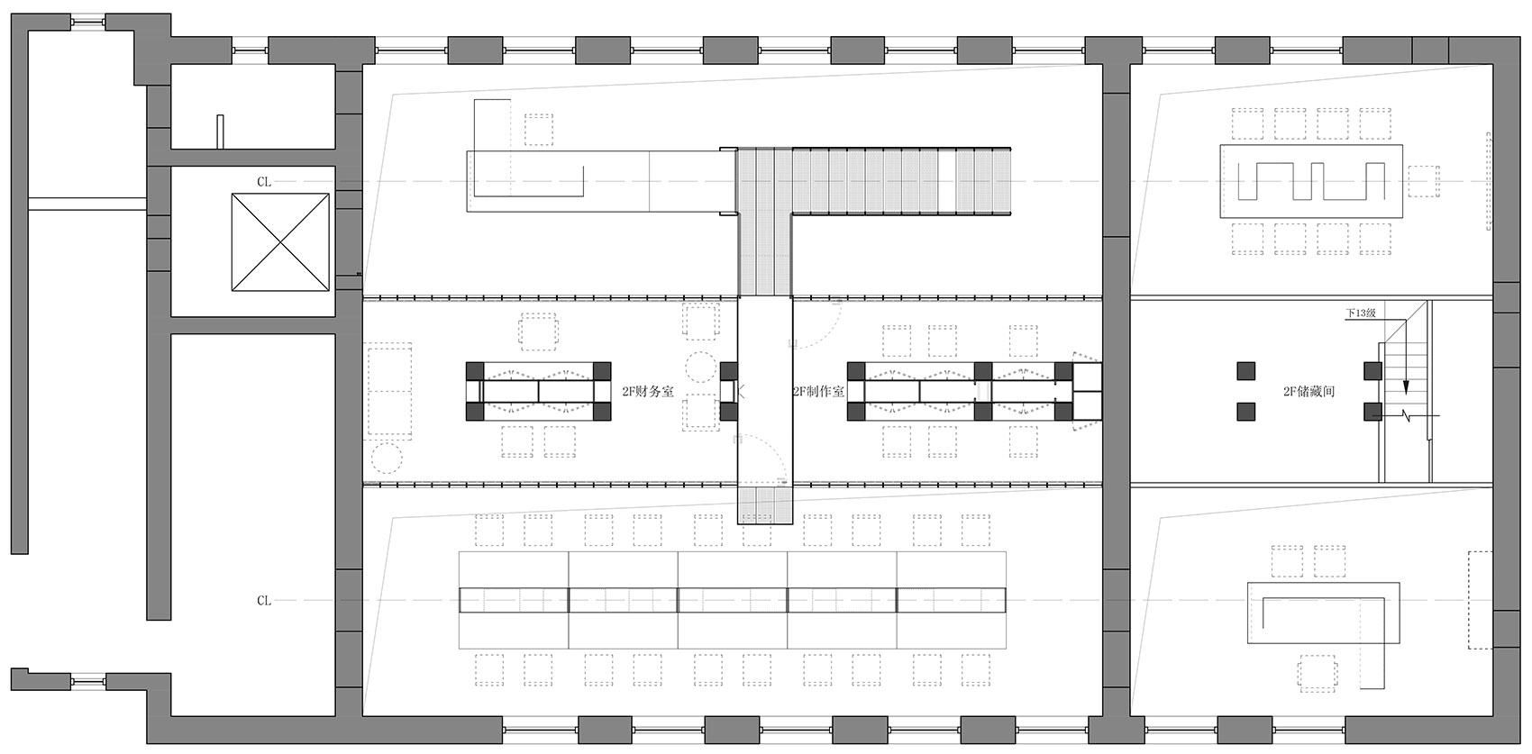
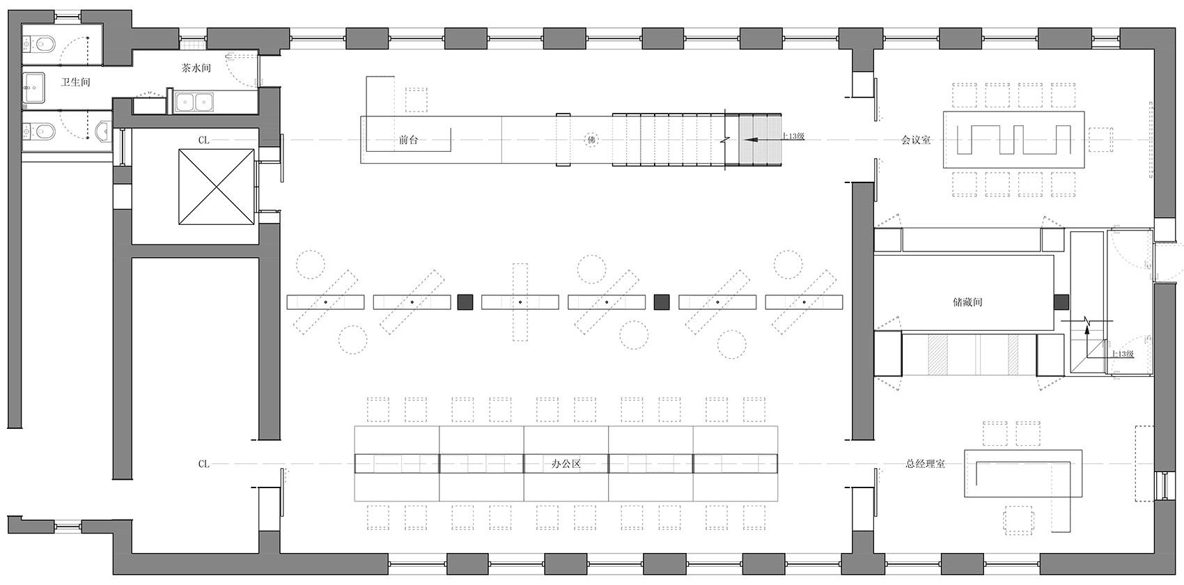
设计顺应原有空间格局,循着两条轴线展开。电梯上来,铺展开的是迎宾的轴线。前台白色岩板台面延伸入钢制梯盒成台阶。Kaws的大公仔端坐其上,沉思于不远处蒋晟佛像的慈光中。


办公室-金麦道设计素材网www.ycpic (5).jpg办公室-金麦道设计素材网www.ycpic (6).jpg

推开钢制谷仓门,白色岩板继续延伸成会议桌,墙面漏空灯盒提示夹层的结构逻辑,下方白色盒子内嵌成茶水台,横板承托着美晖多年的荣耀。在梯盒里拾级而上,踏着穿孔钢板下投射上来的星光,循着两侧游走的钢管扶手,导引至夹层,钢阶穿出梯盒成钢桥,凭栏处俯视空间的构成穿插。


办公室-金麦道设计素材网www.ycpic (7).jpg办公室-金麦道设计素材网www.ycpic (8).jpg办公室-金麦道设计素材网www.ycpic (9).jpg

另一轴线上,谷仓门的开合串连设计部和总监室,长向灯盒和管槽进一步拉伸空间的纵向维度。底层书架自由旋转,让平行的两部分空间的开合充满仪式感。贯穿夹层的内廊一端联系钢桥,一端凌空外挑,上下俯仰成趣。


办公室-金麦道设计素材网www.ycpic (10).jpg办公室-金麦道设计素材网www.ycpic (11).jpg办公室-金麦道设计素材网www.ycpic (12).jpg

空间以穿孔热轧钢板为主要材质,热轧钢板的表面斑驳中,隐约几分温润,突显建筑前世的工业属性。梯盒的围合和踏步均用U形折板构成,通过穿孔的轻盈来化解结构的沉重,而书架的开合进一步变化多维度的穿孔叠加,或浓或淡,如水墨般意境。


办公室-金麦道设计素材网www.ycpic (13).jpg办公室-金麦道设计素材网www.ycpic (14).jpg办公室-金麦道设计素材网www.ycpic (15).jpg办公室-金麦道设计素材网www.ycpic (16).jpg办公室-金麦道设计素材网www.ycpic (17).jpg

白天的阳光穿过天棚圆洞游走于层层叠叠之中,夜晚的灯光则衍射成迷幻。墙面的包浆,轻轻打磨后,淡淡喷涂,让屋漏痕依稀。墙裙采用旧时刷漆工艺,而地面水磨石则折射着旧日时光。


办公室-金麦道设计素材网www.ycpic (18).jpg办公室-金麦道设计素材网www.ycpic (19).jpg办公室-金麦道设计素材网www.ycpic (20).jpg办公室-金麦道设计素材网www.ycpic (21).jpg

办公室-金麦道设计素材网www.ycpic (22).jpg办公室-金麦道设计素材网www.ycpic (23).jpg办公室-金麦道设计素材网www.ycpic (24).jpg办公室-金麦道设计素材网www.ycpic (25).jpg办公室-金麦道设计素材网www.ycpic (26).jpg办公室-金麦道设计素材网www.ycpic (27).jpg办公室-金麦道设计素材网www.ycpic (28).jpg


登录查看全部
植入新设计元素让老建筑重生-美晖办公室
素材ID号980复制ID号
135
  • 上传时间: 2023-03-30 16:40:04
  • 文件大小: 9.93M
  • 素材标签: 现代工业纹理室内办公室
  • 高清原图下载
  • 收藏
  • 分享
  • 他上传的材料
    028-86628548
  • 关于我们 网站协议 关于我们 联系我们 加入我们 业务拓展
  • 常见问题 上传要求 下载问题 充值支付 提现收益 帮助中心
  • 免责声明 本网站内容由用户自由上传,如权利人发现存在误传其作品情形,请及时与本站客服联系
  • 友情链接
  • 关注我们

    了解更多