注册 | 登录
今日更新:100
已为你搜索到以下结果 /没有搜到相关素材请加qq群704148082索取
提倡随性自由没有束缚感的-简约办公室
2023-03-30 16:59:05
简约开放室内空间办公室
且在其中加入了软膜材质的灯光面,可以说是点睛之处,前台的家具设计上与顶面立面的木构造相呼应。明亮的色彩和木纹加以巧妙运用,使得整个空间简洁温暖而有活力。

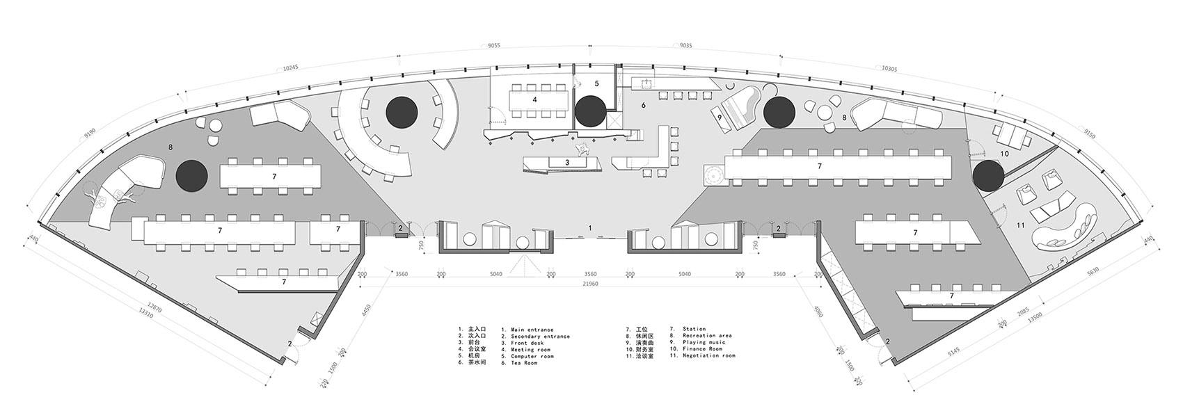
众舍空间受邀为最美期待(武汉)科技有限公司打造一个合作共享的办公空间,该项目位于武汉市东湖新技术开发区k11写字楼内,层高约4m。本项目旨在是激发灵感并改善工作环境,提倡随性自由,没有束缚感的办公空间。管理者与员工共同工作,上层与下属阶级模糊化,工作合作交流更加方便。

办公室-金麦道设计素材网www.ycpic (1).jpg办公室-金麦道设计素材网www.ycpic (2).jpg办公室-金麦道设计素材网www.ycpic (3).jpg办公室-金麦道设计素材网www.ycpic (4).jpg办公室-金麦道设计素材网www.ycpic (5).jpg

众舍设计为该空间打造了具有现代感的开放式设计方案,顶面与立面的木构造进行了几何化的切割,交叠,重组,看似随机但是依然有序,同时为空间带来一丝的不确定性。且在其中加入了软膜材质的灯光面,可以说是点睛之处,前台的家具设计上与顶面立面的木构造相呼应。明亮的色彩和木纹加以巧妙运用,使得整个空间简洁温暖而有活力。

办公室-金麦道设计素材网www.ycpic (6).jpg办公室-金麦道设计素材网www.ycpic (7).jpg办公室-金麦道设计素材网www.ycpic (8).jpg办公室-金麦道设计素材网www.ycpic (9).jpg办公室-金麦道设计素材网www.ycpic (10).jpg

彩色的立柱与几何的地毯和简洁的家具相互搭配,显得十分的和谐。顶面的木构造贯穿了整个天花板,将工作区域和中间的公共区域连接起来。在平面布局上有意增强各个空间之间的联系,实现空间中的各种交流,通过不同的颜色进行细致的分区。墙面和地毯上的标识与色彩带来了强烈的视觉冲击,在一种流动的空间形式中划分出不同的区域。

办公室-金麦道设计素材网www.ycpic (11).jpg办公室-金麦道设计素材网www.ycpic (12).jpg办公室-金麦道设计素材网www.ycpic (13).jpg办公室-金麦道设计素材网www.ycpic (14).jpg办公室-金麦道设计素材网www.ycpic (15).jpg

登录查看全部
提倡随性自由没有束缚感的-简约办公室
素材ID号981复制ID号
126
  • 上传时间: 2023-03-30 16:59:05
  • 文件大小: 3.59M
  • 素材标签: 简约开放室内空间办公室
  • 高清原图下载
  • 收藏
  • 分享
  • 他上传的材料
    028-86628548
  • 关于我们 网站协议 关于我们 联系我们 加入我们 业务拓展
  • 常见问题 上传要求 下载问题 充值支付 提现收益 帮助中心
  • 免责声明 本网站内容由用户自由上传,如权利人发现存在误传其作品情形,请及时与本站客服联系
  • 友情链接
  • 关注我们

    了解更多