注册 | 登录
今日更新:100
已为你搜索到以下结果 /没有搜到相关素材请加qq群704148082索取
在繁琐的思绪里获得一丝平静-极简办公室
2023-03-30 17:19:02
极简工业纹理自然办公室
在繁琐的思绪里获得一丝平静,空间不再以单纯的形式主义而存在。在保留天井采光的设计上,我们旨在创造接近完美的空间,通过天井与外界形成的对话,丰富了空间的感受,也提供了更多不一样的体验感。

办公室-金麦道设计素材网www.ycpic (32).jpg办公室-金麦道设计素材网www.ycpic (2).gif

无论白天或黑夜,空间带来的体验感充满无尽的可能性,我们将它视为内心所追寻感性的力量,不遗不弃。因此这一次,一直坚持摒弃过多繁复设计理念的AD ARCHITECTURE,为了追寻这份感性,将自己的办公空间打造成了设计灵魂的栖息地。

办公室-金麦道设计素材网www.ycpic (2).jpg办公室-金麦道设计素材网www.ycpic (3).jpg办公室-金麦道设计素材网www.ycpic (4).jpg

AD ARCHITECTURE 办公空间坐落于汕头市,一座由老厂房改造的创意园里。这些老房子见证了这座城市的起落,随着城市迅猛的发展扩张,它们逐渐被遗忘或等待重新拆建改造。目睹着一幕幕的发生,我们仿佛能听到它们无力、落寞的诉说,不由让我们记起第一眼看到这空间时它所呈现出的原始生机和独特气质。难道它曾经带给我们有关于历史的诉说就这样结束了吗?当所有感性涌上心头,我们开始思考,并决定通过改造,让其重新呈现出属于它的戏码。感知空间所赋予我们的灵感,不过多去改变它,而是聆听它的诉说。在这一次设计中,尊重空间原有的意识形态,再注入新的活力,这正是我们需要去做好的事。

办公室-金麦道设计素材网www.ycpic (5).jpg办公室-金麦道设计素材网www.ycpic (6).jpg

在设计上,为了追求大空间所带来的尺度感,我们摒弃了过多的隔断和装饰,从材质的构成自然的延伸了原始空间与新力量的融合。黑漆饰面、水泥地板、深灰钢板强化了原始空间的意识氛围。用代表工业化的钢材、铁作为加建整体造型的材料,省略了无谓的加工和装饰。随着时间自然地锈蚀,就像试图展现力量与美的本质,尊重了每块材料的完整性和独特性。构造尽量简单而直接,无一不在诉说这空间的隐秘力量,强化凝聚了它原本的气质。

办公室-金麦道设计素材网www.ycpic (7).jpg办公室-金麦道设计素材网www.ycpic (8).jpg办公室-金麦道设计素材网www.ycpic (9).jpg办公室-金麦道设计素材网www.ycpic (10).jpg

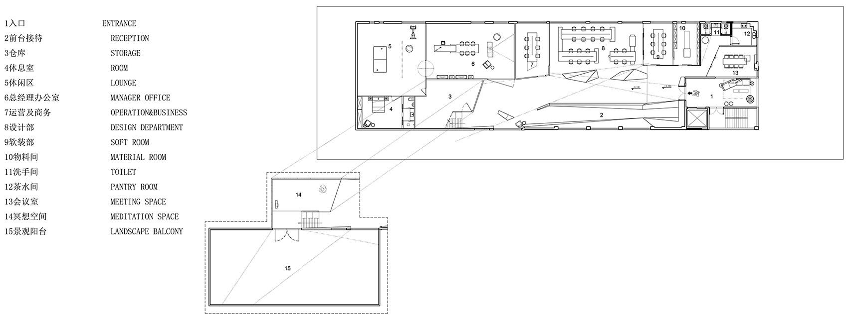
在基本保留原始结构下和满足办公功能使用的同时,我们在空间中增添了大胆的放空,大体是以公共办公区为核心,再分出两个戏码,注入了新的活力。分割出的一个小阁楼,增强了形式感,并通过体块穿插让原本高挑的空间变得趣味性,每个体块看似连贯,却又互不制约;同时,让每个空间都具备其该有的功能形式。整体区域开敞舒适,关注点在于重生的形式感,我们希望这种形式感能延续到设计师工作的状态中,开放心态、敢于走出每一步;同时也是我们希望呈现给每个来访者的空间触感。

办公室-金麦道设计素材网www.ycpic (11).jpg办公室-金麦道设计素材网www.ycpic (12).jpg

The sun is power,建筑本身的原构造被保留下来,我们用天井和简洁的大落地窗的形式去表达人与自然的关系,阳光从半透明的天井上洒向室内,在锈蚀的造型上倒影着阳光斑驳的影子,是活力的注入。简洁的大落地窗无意间成为了空间对外近距离的诉说,身处其中有着惬意的感受。随着折射的光影,我们能俯仰自然所带来的力量;设计师们在这里追逐梦想,唤醒对设计的坚持,也使想象力获得了自由。

办公室-金麦道设计素材网www.ycpic (13).jpg办公室-金麦道设计素材网www.ycpic (14).jpg办公室-金麦道设计素材网www.ycpic (15).jpg办公室-金麦道设计素材网www.ycpic (16).jpg

灯光照明也是本次设计的重头戏码,坚持少则是多的原则,尽可能做到见光不见灯的状态。前台和办公区域的灯光照明,也多是利用灯带的方式去表达。挑空区光影和造型平面形成了第二次折射,没有做作的装饰氛围,既简约又能把握空间的光感尺度。这也正是我们无论现在或未来在设计上所遵循的。

办公室-金麦道设计素材网www.ycpic (17).jpg办公室-金麦道设计素材网www.ycpic (19).jpg办公室-金麦道设计素材网www.ycpic (20).jpg办公室-金麦道设计素材网www.ycpic (21).jpg办公室-金麦道设计素材网www.ycpic (22).jpg

软装作为装饰出现在空间设计中,是设计的符号,也是设计文化与生活的对接。我们在挑选软装上以材质简洁为基调,呼应空间,使得软装与空间有连续性,同时也体现了空间个性。小阁楼是本次装饰的着重点,不大的空间里每天都有很多的内心戏在上演。阁楼一侧偌大的人物走像,望着门外,如同暗示着来访者关于这个办公空间还有未完的探险,走近,灯光下的铁丝球又在赤裸裸的表述了对艺术的诉说,一根根铁丝交织着,就像设计师的无限思绪。结合艺术的语言去塑造一个感性又有力量的办公空间,是这一次我们所致力去做的。

办公室-金麦道设计素材网www.ycpic (23).jpg办公室-金麦道设计素材网www.ycpic (24).jpg办公室-金麦道设计素材网www.ycpic (25).jpg

办公室-金麦道设计素材网www.ycpic (26).jpg办公室-金麦道设计素材网www.ycpic (27).jpg办公室-金麦道设计素材网www.ycpic (28).jpg办公室-金麦道设计素材网www.ycpic (29).jpg办公室-金麦道设计素材网www.ycpic (30).jpg办公室-金麦道设计素材网www.ycpic (31).jpg

登录查看全部
在繁琐的思绪里获得一丝平静-极简办公室
素材ID号982复制ID号
119
  • 上传时间: 2023-03-30 17:19:02
  • 文件大小: 17.13M
  • 素材标签: 极简工业纹理自然办公室
  • 高清原图下载
  • 收藏
  • 分享
  • 他上传的材料
    028-86628548
  • 关于我们 网站协议 关于我们 联系我们 加入我们 业务拓展
  • 常见问题 上传要求 下载问题 充值支付 提现收益 帮助中心
  • 免责声明 本网站内容由用户自由上传,如权利人发现存在误传其作品情形,请及时与本站客服联系
  • 友情链接
  • 关注我们

    了解更多