注册 | 登录
今日更新:100
已为你搜索到以下结果 /没有搜到相关素材请加qq群704148082索取
空间是体现自己世界的自我意识-创意办公室
2023-03-30 17:32:28
极简科技办公室
空间是体现在他自己的世界中的自我意识,有什么样的人,就有什么样的空间。——赖特

办公室-金麦道设计素材网www.ycpic (2).gif
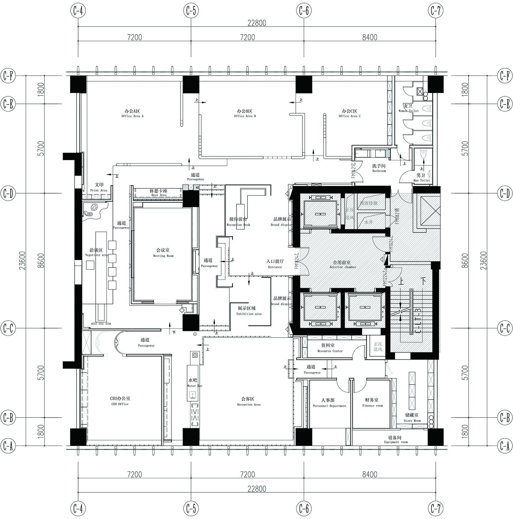
此项目位于杭州钱江世纪城望京,毗邻亚运村,有钱塘江,有绿,有火车,同时紧挨城市CBD,有高楼,有霓虹灯,有混凝土。于是我将基本的功能做了分区。过渡空间把办公空间与会客空间分开,有意的通过一些空间与结构关系将动线拉长,以便增加流线步数。
办公室-金麦道设计素材网www.ycpic (2).jpg办公室-金麦道设计素材网www.ycpic (3).jpg办公室-金麦道设计素材网www.ycpic (4).jpg

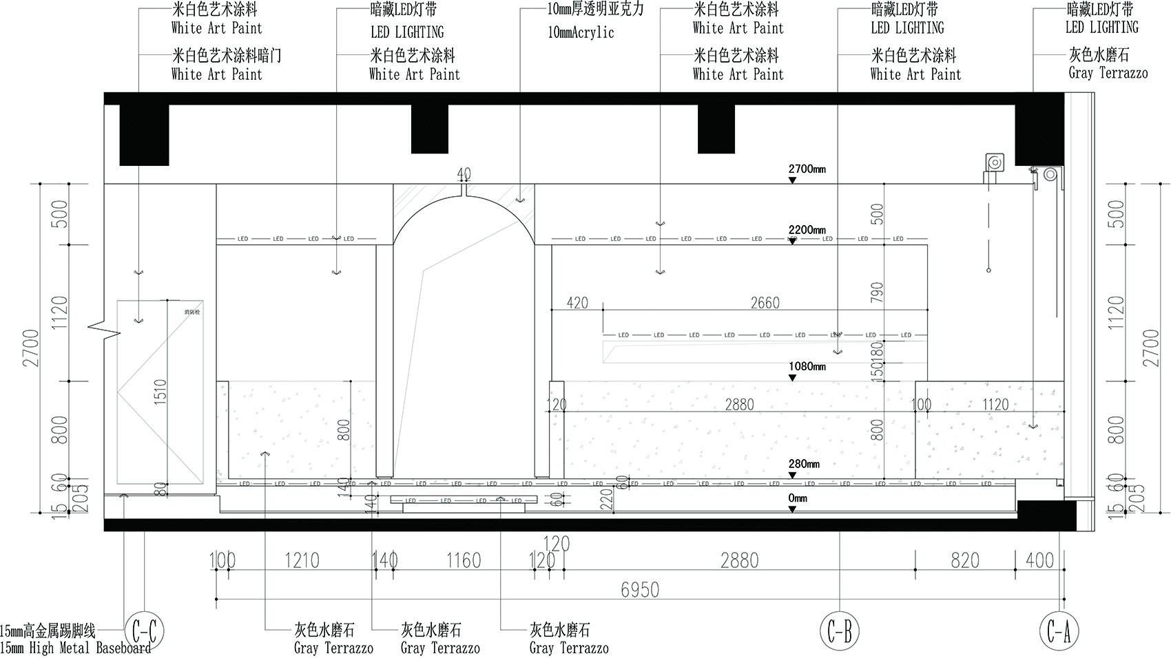
最起初构思此案时,我对空间的探索性与引导性做了实验,尝试用空间去传递想表达的心理与行为暗示,包括邀请,仪式,偷看,意外,层次,穿插,虚空间,光。艺术家James Turrell,思考如何将艺术作品融入到空间,成为空间的一个组成部分。对于空间吊顶与墙面局部的特殊处理,由于结构的改变,光的融合度也产生了变化。利用两层光与光膜的实验,让一种颜色的光包住另一种颜色。

办公室-金麦道设计素材网www.ycpic (5).jpg办公室-金麦道设计素材网www.ycpic (6).jpg办公室-金麦道设计素材网www.ycpic (7).jpg办公室-金麦道设计素材网www.ycpic (8).jpg办公室-金麦道设计素材网www.ycpic (9).jpg

关于结构,一直以来对建筑空间特别向往。雕塑性和立体性的空间对我而言更具有吸引力。对于空间表现来说,我更希望是有关于心理由浅入深的层次表达,通过结构关系的引导,让空间与空间过渡变的更有趣。

办公室-金麦道设计素材网www.ycpic (10).jpg办公室-金麦道设计素材网www.ycpic (11).jpg

有一处神秘的空间,在整个大空间中想私藏一处收藏与私密的会客室,思考来源是禁酒令时期的机关藏躲。我们采用的是机械结构结合一扇定制的半圆形的门,处于空间的尽头,带着一条竖向的光。人们不知这扇巨型的人半圆门通过智能控制,缓缓移动,一处私密空间藏与空间的背后。

办公室-金麦道设计素材网www.ycpic (12).jpg办公室-金麦道设计素材网www.ycpic (13).jpg办公室-金麦道设计素材网www.ycpic (14).jpg办公室-金麦道设计素材网www.ycpic (15).jpg

在空间施工过程中,遇到了很多的“意外”。对于这些“意外”,我都是特别期待的。它们是故事的一部分,因而我更多的是保留,让它们在这个空间里散发自己的魔力。建筑与空间的幸福感和幽默感是我一直在追寻的方向。这个世界不缺乏有意义的事,却缺乏有意思的事!

办公室-金麦道设计素材网www.ycpic (16).jpg办公室-金麦道设计素材网www.ycpic (17).jpg办公室-金麦道设计素材网www.ycpic (18).jpg办公室-金麦道设计素材网www.ycpic (19).jpg

办公室-金麦道设计素材网www.ycpic (20).jpg办公室-金麦道设计素材网www.ycpic (21).jpg办公室-金麦道设计素材网www.ycpic (22).jpg办公室-金麦道设计素材网www.ycpic (23).jpg办公室-金麦道设计素材网www.ycpic (24).jpg办公室-金麦道设计素材网www.ycpic (25).jpg

登录查看全部
空间是体现自己世界的自我意识-创意办公室
素材ID号983复制ID号
146
  • 上传时间: 2023-03-30 17:32:28
  • 文件大小: 8.13M
  • 素材标签: 极简科技办公室
  • 高清原图下载
  • 收藏
  • 分享
  • 他上传的材料
    028-86628548
  • 关于我们 网站协议 关于我们 联系我们 加入我们 业务拓展
  • 常见问题 上传要求 下载问题 充值支付 提现收益 帮助中心
  • 免责声明 本网站内容由用户自由上传,如权利人发现存在误传其作品情形,请及时与本站客服联系
  • 友情链接
  • 关注我们

    了解更多