注册 | 登录
今日更新:100
已为你搜索到以下结果 /没有搜到相关素材请加qq群704148082索取
空间设计恰当避免了视觉混乱-简约办公室
2023-03-31 11:51:40
简约工业办公室
存储空间和便利设施隐藏在木墙后面,从而避免了视觉混乱,这在信息丰富的工作场所中至关重要。

办公室-金麦道设计素材网www.ycpic (2).jpg办公室-金麦道设计素材网www.ycpic (3).jpg

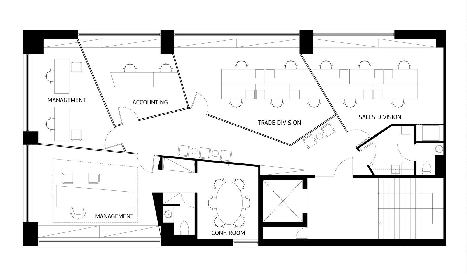
架构师提供的文本描述。 希腊市场领先的批发国际贸易公司Astor Hellas与我们接洽,设计他们在塞萨洛尼基的新总部,这是一个办公空间,将他们的所有功能集中在一个开放的环境中,这将反映他们的价值观和品牌地位。

办公室-金麦道设计素材网www.ycpic (4).jpg办公室-金麦道设计素材网www.ycpic (5).jpg办公室-金麦道设计素材网www.ycpic (6).jpg

在接待层,办公空间很小,以便容纳来访的合作伙伴和客户以及所有次要功能(如IT,档案室和人事室)。

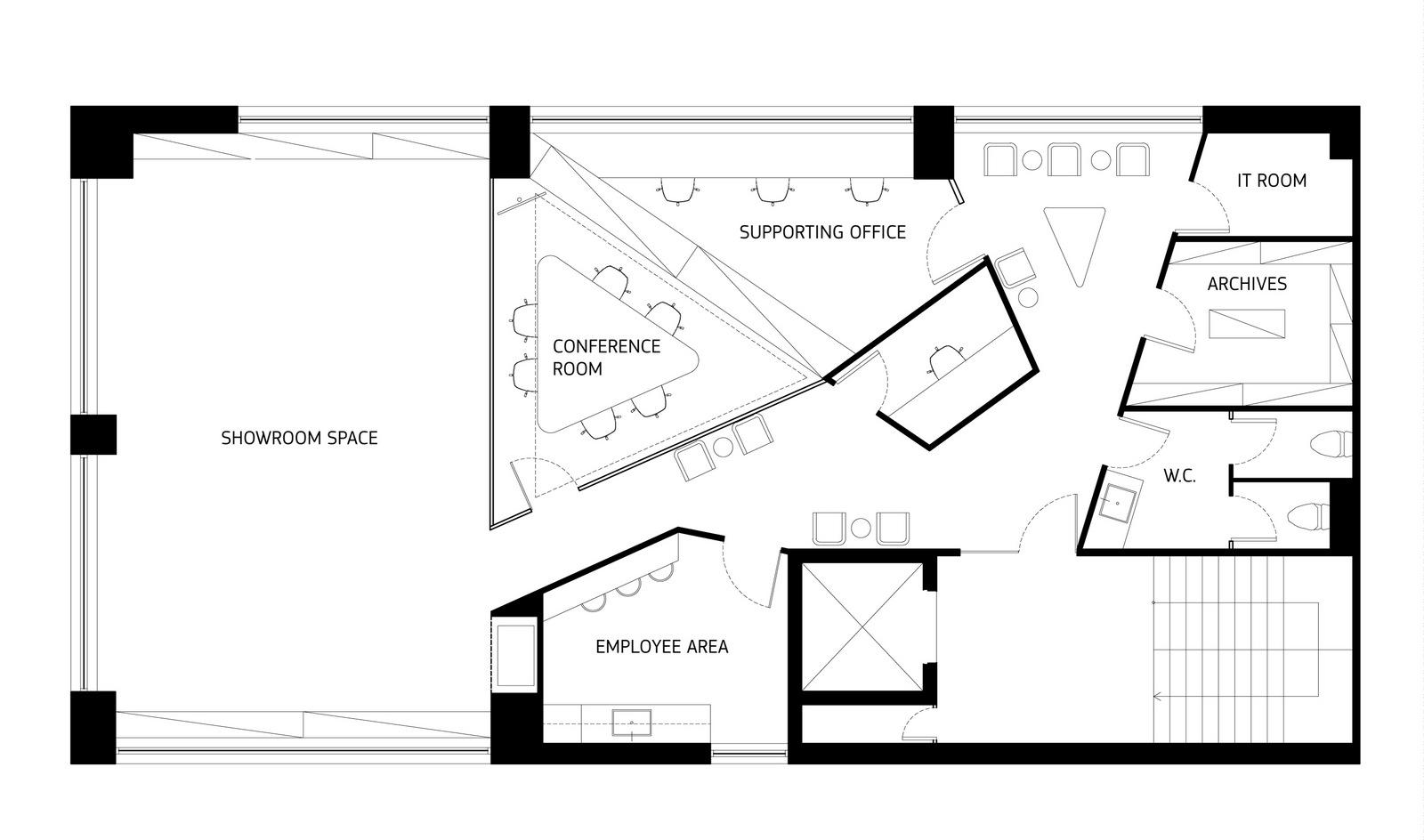
它还设有中央会议室 - 与主要办公区域分开 - 确保更高效和更具建设性的会议会议,远离干扰和不必要的干扰。二楼分别专门用于办公室,建立了一个更高效的环境,没有不必要的干扰其他活动。公司的所有部门都与管理层一起聚集在一起,为有效和顺畅的工作流程提供了直接设置。

办公室-金麦道设计素材网www.ycpic (7).jpg办公室-金麦道设计素材网www.ycpic (8).jpg办公室-金麦道设计素材网www.ycpic (9).jpg

为了“打破”建筑矩形平面图的僵化,我们决定将空间分割成更有活力的体量,使每个办公区域看起来更大,与旁边的办公区域更紧密地联系在一起。公司的日常运营需要各个部门之间不断交流,视觉传达与声音传达同样重要。透明胶片允许员工之间更直接地接近,同时它们的并置创造了更大空间的错觉。

办公室-金麦道设计素材网www.ycpic (10).jpg办公室-金麦道设计素材网www.ycpic (11).jpg办公室-金麦道设计素材网www.ycpic (12).jpg办公室-金麦道设计素材网www.ycpic (13).jpg

为了解决玻璃分区可能引起的混响问题,整个材料(隔间隔板、地板等)都使用了更柔软、更吸音的材料,以便通过消除办公机器的环境噪音并最大限度地减少电话和对话的背景噪音来提供工作友好的空间。存储空间和便利设施隐藏在木墙后面,从而避免了视觉混乱,这在信息丰富的工作场所中至关重要。

办公室-金麦道设计素材网www.ycpic (14).jpg办公室-金麦道设计素材网www.ycpic (15).jpg办公室-金麦道设计素材网www.ycpic (16).jpg办公室-金麦道设计素材网www.ycpic (17).jpg办公室-金麦道设计素材网www.ycpic (18).jpg

办公室-金麦道设计素材网www.ycpic (19).jpg办公室-金麦道设计素材网www.ycpic (20).jpg办公室-金麦道设计素材网www.ycpic (21).jpg办公室-金麦道设计素材网www.ycpic (22).jpg

办公室-金麦道设计素材网www.ycpic (24).jpg办公室-金麦道设计素材网www.ycpic (25).jpg办公室-金麦道设计素材网www.ycpic (26).jpg

办公室-金麦道设计素材网www.ycpic (23).jpg

登录查看全部
空间设计恰当避免了视觉混乱-简约办公室
素材ID号997复制ID号
129
  • 上传时间: 2023-03-31 11:51:40
  • 文件大小: 10.41M
  • 素材标签: 简约工业办公室
  • 高清原图下载
  • 收藏
  • 分享
  • 他上传的材料
    028-86628548
  • 关于我们 网站协议 关于我们 联系我们 加入我们 业务拓展
  • 常见问题 上传要求 下载问题 充值支付 提现收益 帮助中心
  • 免责声明 本网站内容由用户自由上传,如权利人发现存在误传其作品情形,请及时与本站客服联系
  • 友情链接
  • 关注我们

    了解更多