注册 | 登录
今日更新:100
已为你搜索到以下结果 /没有搜到相关素材请加qq群704148082索取
营造出温馨而轻松感觉的空间-简约办公室
2023-03-31 13:28:58
简约工业办公室
实心白蜡木,木材松木是天然或涂漆的木材和黑色粉末涂层钢是主要材料。墙壁揭示了施工方法,将典型的建筑从里到外;木钉可见。

办公室-金麦道设计素材网www.ycpic (2).jpg办公室-金麦道设计素材网www.ycpic (3).jpg

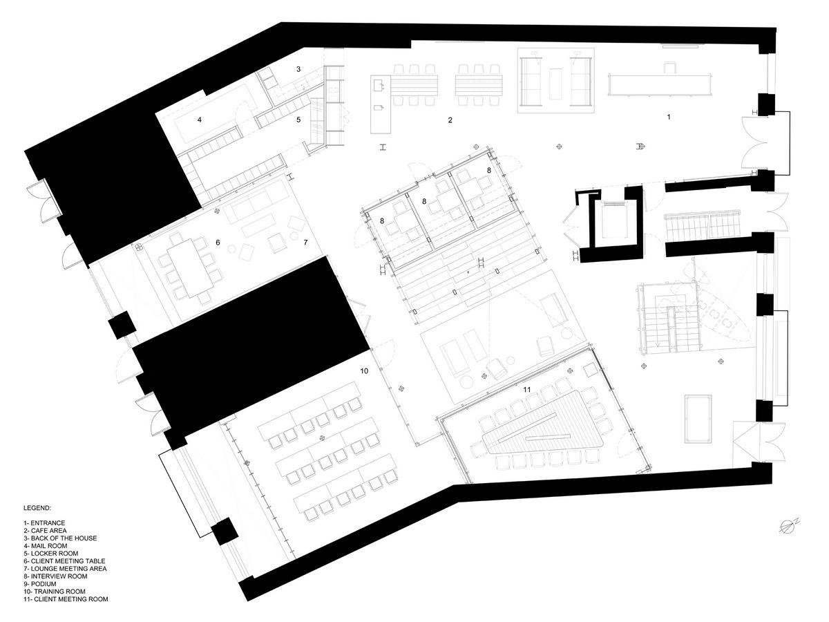
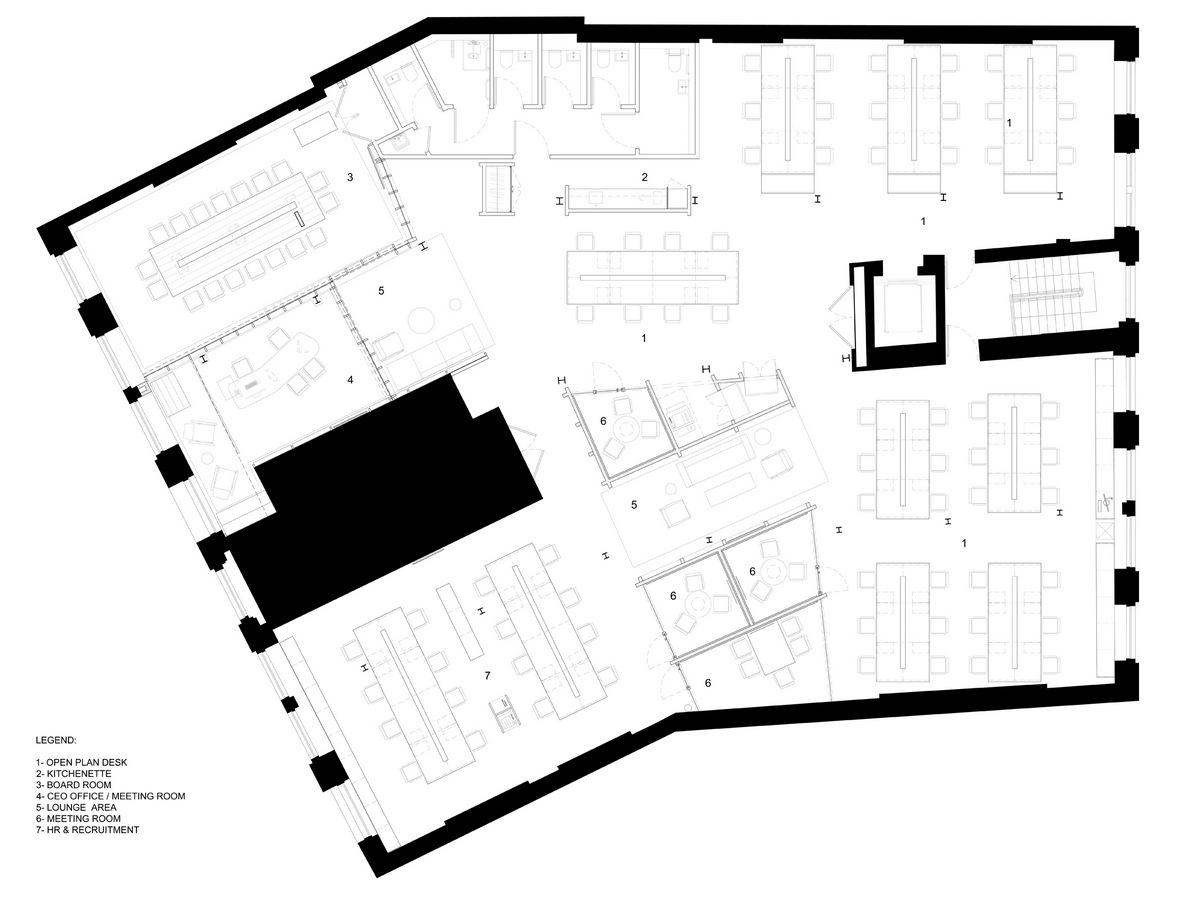
架构师提供的文本描述。 位于伦敦肖尔迪奇的Capco和Bold Rocket办公室位于一栋拥有150年历史的5层钢砖阁楼内。社区的建筑和文化背景激发了设计理念:开放式阁楼空间、具特色的工业建筑、坚固的材料、可见的细木工细节。定制家具和墙壁使用原材料并暴露了施工方法。

办公室-金麦道设计素材网www.ycpic (4).jpg

该建筑具有具有挑战性的形状,将平面图分为 4 个相当独立的角落,中间有一个中心区域。所有楼层均采用开放式设计,与建筑的阁楼特色保持一致。

办公室-金麦道设计素材网www.ycpic (5).jpg办公室-金麦道设计素材网www.ycpic (6).jpg办公室-金麦道设计素材网www.ycpic (7).jpg办公室-金麦道设计素材网www.ycpic (8).jpg

一楼是最公共的。一系列体积定义了不同的区域。咖啡厅位于入口附近,营造出温馨而轻松的感觉。一个独立的看台将入口与中央休息室隔开。面对看台,另一个体积容纳了主会议室 - 其内部涂有赭石,即使在伦敦天气沉闷时也能营造出快乐的感觉 - 它的外表面用作投影墙,将休息室和看台变成一个可以举行市政厅演示的空间。

办公室-金麦道设计素材网www.ycpic (9).jpg办公室-金麦道设计素材网www.ycpic (10).jpg办公室-金麦道设计素材网www.ycpic (11).jpg
办公室-金麦道设计素材网www.ycpic (14).jpg

在赭石房间附近,一枚巨大的橙色火箭,这是一枚3D打印,悬挂在楼梯空隙中。楼梯通向大胆的火箭手工作的较低楼层。在火箭的两侧,消防楼梯的墙壁变成了一堵活墙,它的植物图案与咆哮的火箭烟雾相呼应。

办公室-金麦道设计素材网www.ycpic (12).jpg办公室-金麦道设计素材网www.ycpic (13).jpg

除了椅子和沙发 - 这是中世纪灵感作品的混合 - 所有家具都是定制的,使用实心白蜡木板和木材结合发黑的钢。固体材料将承受磨损,并在老化时获得丰富的特性。大多数材料的来源在100英里半径内。

办公室-金麦道设计素材网www.ycpic (16).jpg办公室-金麦道设计素材网www.ycpic (17).jpg办公室-金麦道设计素材网www.ycpic (18).jpg

家具和布局的设计允许不同类型的自发会议发生。有大型公共办公桌,有机形状的会议桌,高高的肉块,安静的隔间。墙壁上涂有白色的油漆,因此几乎可以在任何墙壁上书写。

办公室-金麦道设计素材网www.ycpic (19).jpg办公室-金麦道设计素材网www.ycpic (20).jpg

与肖尔迪奇(Shoreditch)与其高科技邻居城市(City)的对比类似,原始建筑与数字技术并置:投影和LED屏幕,摄像机,扬声器等在整个空间中交错。

办公室-金麦道设计素材网www.ycpic (21).jpg办公室-金麦道设计素材网www.ycpic (22).jpg

办公室-金麦道设计素材网www.ycpic (23).jpg办公室-金麦道设计素材网www.ycpic (24).jpg办公室-金麦道设计素材网www.ycpic (25).jpg

办公室-金麦道设计素材网www.ycpic (28).jpg
办公室-金麦道设计素材网www.ycpic (26).jpg

登录查看全部
营造出温馨而轻松感觉的空间-简约办公室
素材ID号998复制ID号
127
  • 上传时间: 2023-03-31 13:28:58
  • 文件大小: 9.12M
  • 素材标签: 简约工业办公室
  • 高清原图下载
  • 收藏
  • 分享
  • 他上传的材料
    028-86628548
  • 关于我们 网站协议 关于我们 联系我们 加入我们 业务拓展
  • 常见问题 上传要求 下载问题 充值支付 提现收益 帮助中心
  • 免责声明 本网站内容由用户自由上传,如权利人发现存在误传其作品情形,请及时与本站客服联系
  • 友情链接
  • 关注我们

    了解更多